ОФЕРТА:27810 Продава се нова къща с площ 156 кв.м, разположена в двор от 450 кв.м в тихата и предпочитана част на село Оризари само на няколко минути от Пловдив.
Къщата е в процес на изграждане, с очакван Акт 16 през 2026 г.
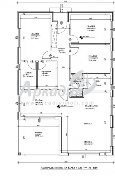
Проектът включва:
Просторен хол 45 кв.м, с излаз към веранда; родителска спалня със собствен дрешник и санитарен възел, две отделни спални, баня с тоалетна, перално, склад и коридор. Две паркоместа в двора.
Съвременна архитектура с функционално разпределение. PVC дограма с цвят антрацит, Септична яма, Права вода.
Имотът предлага отлична комбинация между спокойствие, чист въздух и удобен достъп до града. Подходящ е както за постоянно живеене, така и за ваканционен дом.
ЗА ПОВЕЧЕ ИНФОРМАЦИЯ И ОГЛЕДИ ТЕЛ.ЗА КОНТАКТИ 0879056454. ВИЖТЕ ВСИЧКИ НАШИ ОФЕРТИ - WWW.ARCADIAIMOTI.COM







