Сграда С АКТ 14!!!
Capital Property Group Ви предлага за продажба проект на нова жилищна сграда в м-ст Зеленика, гр. Варна. Към момента е изграден грубият строеж, има АКТ 14!
В два парцела с обща площ от 703 кв.м е ситуирана 4-етажна тухлена сграда с РЗП 540 кв.м. Намира се на 450 метра от автобусна спирка, на 800 метра от кв. Галата, на 2 км от плаж Аспарухово и хипермаркет ЛИДЛ, в близост до главния път.
Проектът включва 4-етажна сграда само с 4 жилища /по едно на етаж/. Изложението на всекидневните и на четирите жилища е западно. Предвид неголямото РЗП, може да бъде използвана и като еднофамилна жилищна сграда.
Апартаментите са със застроена площ от 97 кв.м. до 165 кв.м. Към всеки имот ще има и избено помещение, а на първия етаж има и 6 бр. велосипедни места. Откритите паркоместа са 5 на брой, /от които 1 е инвалидно/ и ще бъдат ситуирани непосредствено до улицата.
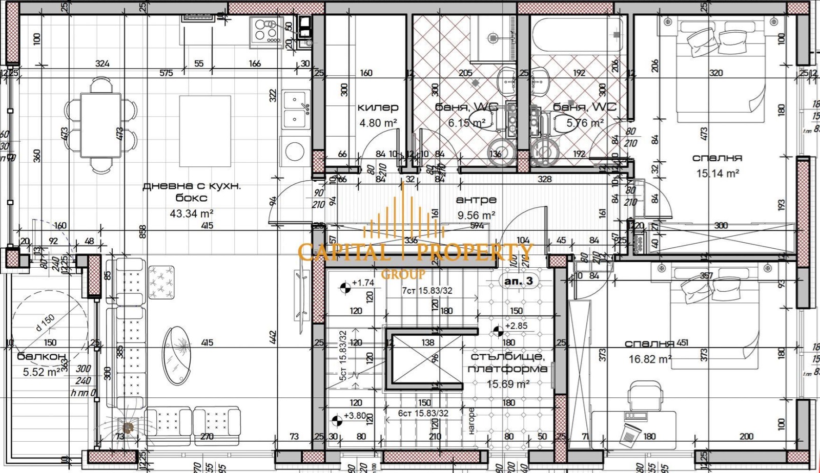
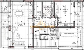
В приложения снимков материал можете да намерите разпределенията на апартаментите и разположението на паркоместата.
АПАРТАМЕНТИ:
1.партерен етаж /-2,85м/ - двустаен апартамент с дворна тераса - 96.93 м2;
2.втори етаж /0,00м/ - тристаен апартамент с всекидневна 43м2, две спални 15 и 17 м2, две бани с тоалет по 6м2, балкон 6м2, килер 5м2 и коридор 10м2 - обща площ 164.14 м2;
3.трети етаж /2,85м/ - тристаен апартамент с всекидневна 43м2, две спални 15 и 17 м2, две бани с тоалет по 6м2, килер 5м2;
4.четвърти етаж /5,70м/ - двустаен апартамент с всекидневна от 35.5м2, спалня 16м2, баня с тоалет 6м2, килер 5м2 - обща площ 150 м2;
5.Открити ПМ 5 бр.
Поради спецификата на терена в района на сградата, от всекидневните на апартаментите се открива ПАНОРАМНА ГЛЕДКА КЪМ ВАРНА ОТ ВСЕКИ ЕТАЖ!!!
ЦЕНА ЗА ПОКУПКА НА ЦЕЛИЯ ПРОЕКТ - 460 000 евро (на етап АКТ 14).
Капитал Пропърти Груп разполага с юридически отдел, който извършва всички необходими юридически и технически проверки на имота, ще организира всички етапи на сделката до нейното финализиране с нотариално прехвърляне на имота.
Капитал Пропърти Груп може да Ви съдейства за отпускане на банков кредит при възможно най-добри условия за клиента, като избора на банка се определя спрямо нуждите и възможностите на клиента, при това напълно безплатно.
За повече информация и огледи се свържете с нас на посочения телефон или ни пишете на viber/whatsapp.







