ТОПИММО предлага за продажба нискоенергийна двуетажна къща в строеж, намираща се в живопистна местност между с. Оброчище и с. Църква, община Балчик.
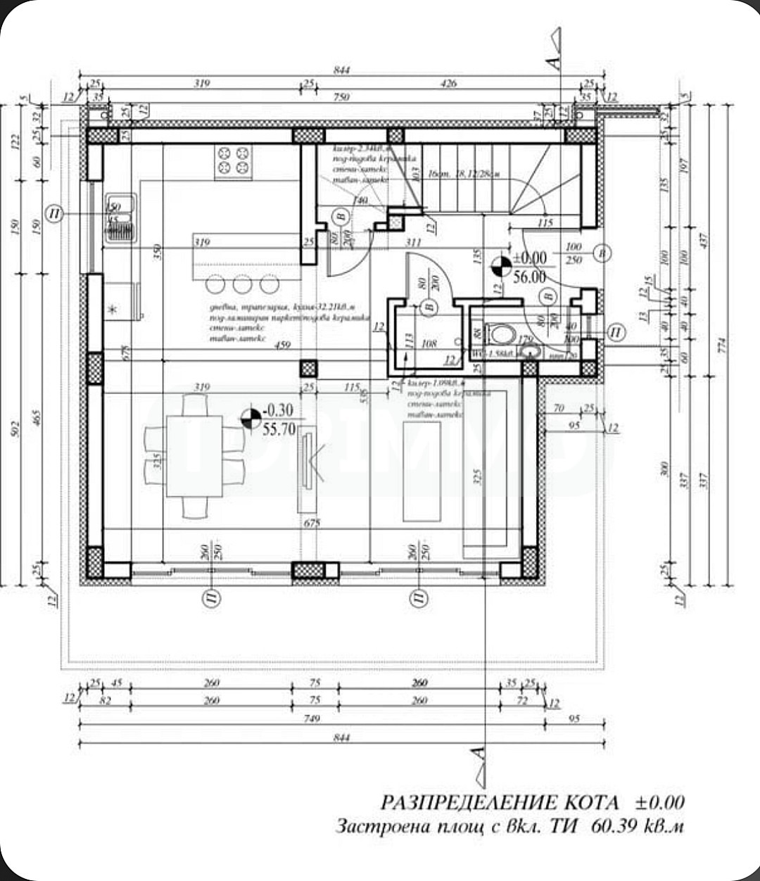
Къщата е с РЗП 138м2, допълнително веранда 12м2 и парцел 790 м2. Ще бъде построена в модерен стил, ниско строителство, което максимално се вписва в заобикалящата го среда. Състои се от 3 спални, с 2 бани и тоалетни , кухня/трапезария с биокамина и веранда.
Всички помещения са ориентирани на югозапад с големи панорамни прозорци (алуминий с термо мост и стъклопакет с нискоенергийно стъкло), което ще позволява да се наслаждавате на прекрасната, нескриваема гледка през целият ден.
Изпълненението е с качествени материали, а добрата изолация гарантира ниските енергийни разходи и комфорта в летните и зимните месеци. Екстериорът и интериорът са в минималистичен стил, а вниманието към детайла затвърждава чувството за уют и дом. Алармена система, камера, соларно улично осветление, предварително пуснати изводи за климатици във всяко помещение.
В двора ще има изградени паркоместа за два автомобила, както и поливна система грижеща се за озеленяването посредством мобилно приложение.
Започване на строителството - март/април. Срок на завършване - 1 година до ключ. Схема на плащане според етапите на строителство.
Имотът е разположен в сърцето на долина Батовска, на място с прекрасна горска панорама и в обхвата на Натура 2000, които са защитени екологични зони - гаранция за запазване чистотата и спокойствието в района, както и защита срещу презастрояването, типично за вилните зони в близост до морето. Намира се на 4км от кк Албена, 10 км от прекрасния Балчик, 30 км от Варна и летището. Локацията предлага спокойствие вън от големия град, непосредствена близост до морето и в същото време бърз достъп до гр.Варна и летището.
Започва се строителството на къщи от същия тип с две и три спални и квадратури между 100 и 145м2.
За повече информация и оглед, свържете се с нас! Референтен номер: IG-4919







