ОФЕРТА 19827
'ГОЛД ХОУМ' Ви предлага просторна и уютна еднофамилна къща с двор в с. Войводиново.
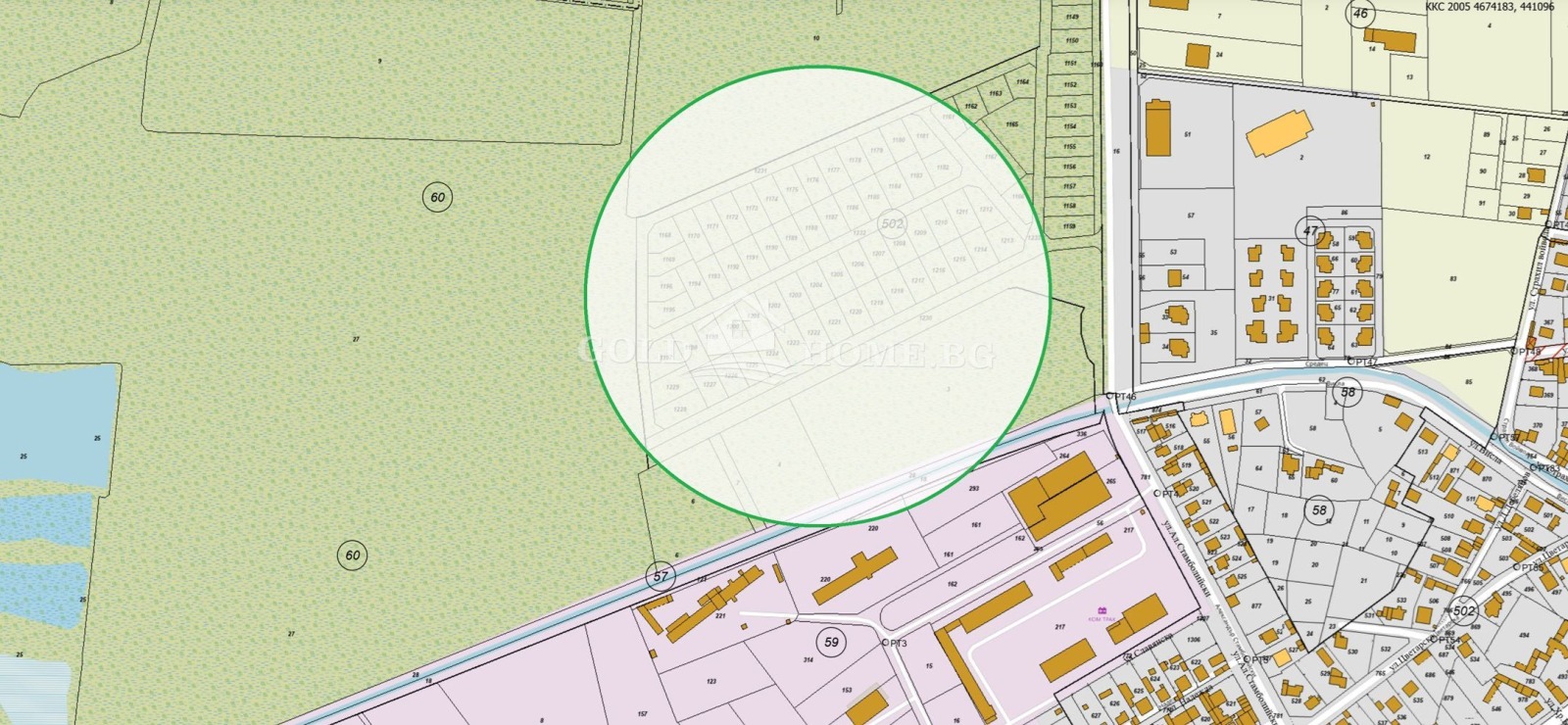
✅ Къщата се намира в най-новия квартал на с. Войводиново, само на 4км (5мин.!) от гр. Пловдив, предназначен за вилни и ниски къщи от семеен тип.
➡️ Локацията е посочена в снимките към офертата.
✅ Характеристики на имота:
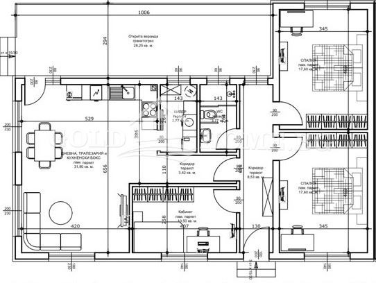
➡️ 142 кв.м застроена площ на къщата, от които 114.41 кв.м покрито жилищно пространство и 28.25 кв.м открита веранда, с възможност за покриване/усвояване;
➡️ Къщата се състои: всекидневна с кухненски бокс, две спални, кабинет (3-та спалня), килер, баня с толента, коридори и просторна веранда;
➡️ Изложения: югоизток-северозапад;
➡️ Представява къща-близнак, на калкан със идентична сграда;
➡️ прилежащи 216 кв.м дворно пространство към къщата, незастроени;
➡️ или общо 358 кв.м площ от парцела - застроени и незастроени;
➡️ Къщата е масивно монолитно строителство;
➡️ С висок стоманобетонен фундамент за по-добра наземна изолация и по-добро вертикално позициониране на имота.
➡️ Бетонна септ. яма, с оптимална за имота вместимост и надеждност на конструкцията.
➡️ Паркиране: възможност за паркиране за повече от един автомобил;
✅ Етап на строителство: начален/стартиращ.
➡️в процеса на строителство някои параметри на помещенията мога да претърпят промени от посоченото разпределение в офертата.
✅ Конструкиця с висок клас материали и изпълнение от доказан инвеститор, с множество реализирани обекти.
✅ Обектът е самостоятелен. НЕ Е част от комплекс. БЕЗ такси поддръжка или допълнителни агнажименти към инвеститора след придобиване.
➡️ 'ГОЛД ХОУМ' Ви предлага да се възползвате от професионално юридическо обслужване от адвокатска кантора 'Пеев & Партньори';
➡️ 'ГОЛД ХОУМ' Ви предлага да се възползвате от професионално кредитно посредничество чрез 'Credit Center' при нужда от ипотечен, потребителски кредит или при рефинансиране
➡️ За повече информация и при интерес за оглед, свържете се с нас!







