LUXIMMO FINEST ESTATES: www.luximmo.bg
Ексклузивно представяме нова, самостоятелна къща, разположена в началото на с. Белащица. Локацията ѝ е сред най-предпочитаните около Пловдив - съчетава спокойствие, чист въздух, в район с ниско застрояване и с бърз достъп до града.
Имотът предлага добре обмислено разпределение с ясно отделени дневна и нощна зона, реални размери на помещенията и липса на неизползваеми площи. Къщата е въведена в експлоатация (с Акт 16) и се предлага завършена по БДС, което дава възможност за довършване изцяло по вкус на бъдещия собственик.
Характеристики:
РЗП: 269 кв.м;
площ на парцела: 440 кв.м;
гараж 20 кв.м;
водопровод.
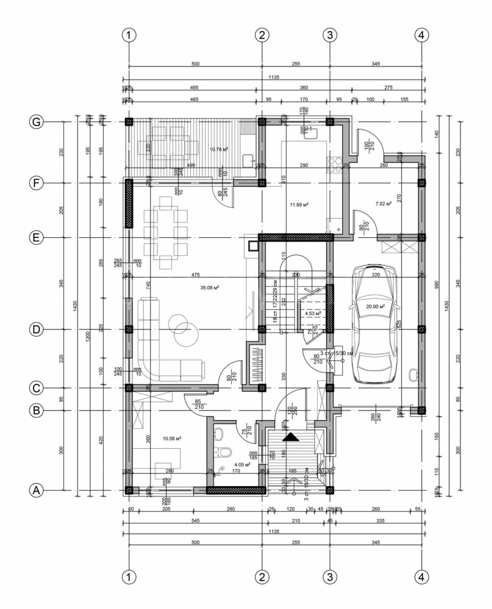
Първи етаж:
дневна с трапезария 35.08 кв.м;
кухня 11.89 кв.м;
спалня / кабинет 10.08 кв.м;
баня с тоалетна 4.05 кв.м;
антре и стълбище 4.53 кв.м;
склад / помещение 7.02 кв.м;
излаз към веранда и двор;
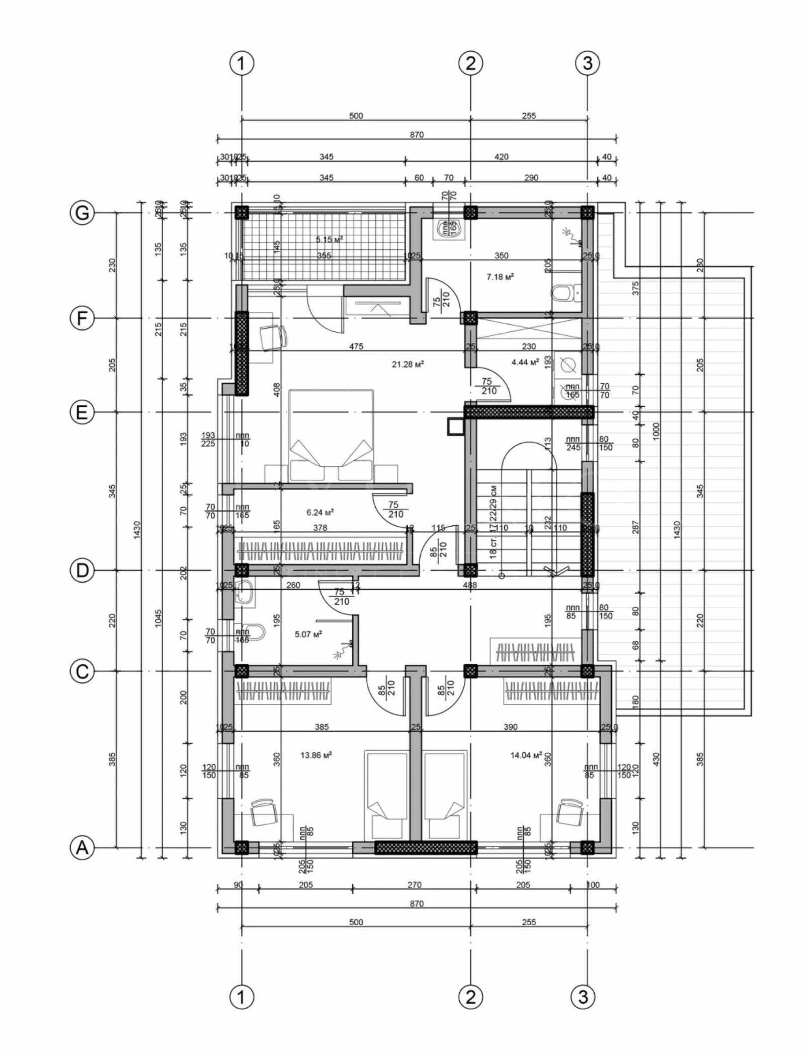
Втори етаж:
мастър спалня 21.28 кв.м;
дрешник 6.24 кв.м;
баня към спалнята 5.07 кв.м;
втора баня 7.18 кв.м;
спалня 13.86 кв.м;
спалня 14.04 кв.м;
коридор 4.44 кв.м;
тераса 5.15 кв.м;
Очакваме Вашето запитване
Ако желаете да организирате оглед на имот, който Ви интересува, или да посетите някой от нашите офиси, моля свържете се с нас. За да уговорите ден и час за среща или оглед, можете да се обадите на посочения в обявата телефон или да изпратите запитване чрез електронната поща. Нашият консултант ще Ви съдейства с всички необходими подробности и ще уговори удобно за Вас време.
Търсите подходящия за Вас имот?
Не се колебайте да се свържете с нас и да ни разкажете за Вашите нужди и предпочитания. Нашият екип ще проведе задълбочено проучване на пазара, за да Ви предложи имоти, които точно отговарят на Вашите критерии. Разполагаме с изключително портфолио от висококачествени и ексклузивни жилища, които са достъпни само за нашите клиенти. За да сте първите, които ще получите информация за тях свържете се с ...
За повече информация свържете се с нас и цитирайте референтния номер на имота. Моля, кажете, че сте видeли обявата в този сайт.
Референтен номер: PLV-139323
Тел: 0884 013 614, 032 349 619
Отговорен брокер:Мариела Желева



