Galerie Real Estates, предлага за продажба модерна еднофамилна самостоятелна къща на две нива, разположена в предпочитания и спокоен район на Панчарево, м-т Детски град съчетаващ тишина, чист въздух и бърз достъп до града.
Имотът е проектиран с функционално разпределение и съвременна визия, осигуряващи комфорт и уют за цялото семейство:
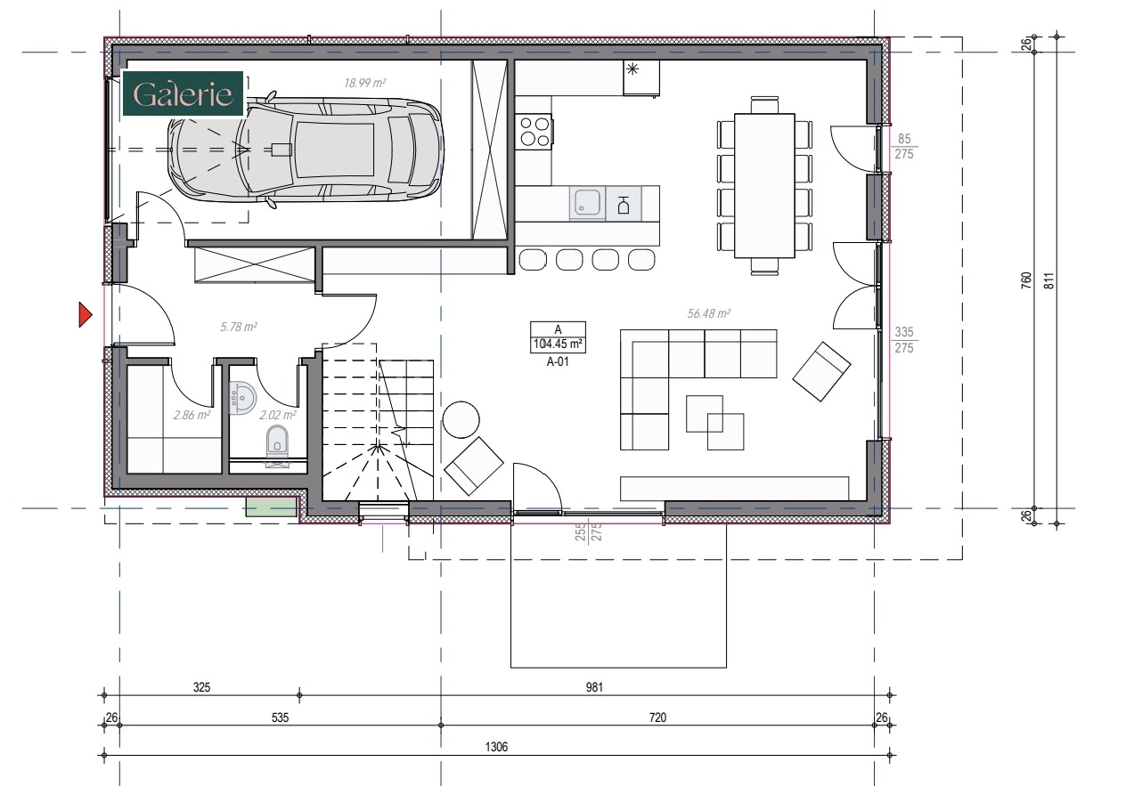
Първо ниво: просторна и светла дневна с кухня и трапезария, с директен излаз към веранда и собствен двор идеално пространство за отдих и семейни събирания, тоалетна за гости и гараж с удобен достъп от задната част на къщата
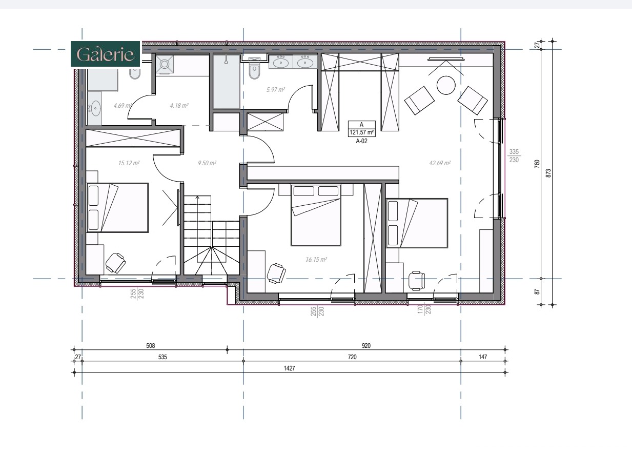
Второ ниво: три спални, като едната е родителска (Master bedroom) със собствена баня и гардеробна, още една баня с тоалетна, обслужваща останалите две спални.
Къщата ще бъде предадена на шпаклова и замазка, като ще бъдат използвани висок клас материали за изграждането и:
Фасада: Вентилируема система с финишалуминиеви композитни плоскости в дървесен флаер и топлоизолация от каменна вата;
Фасадна система с финиш минерална мазилка;
Паваж от бетонови павета, интегрирана система и микрофаска;
Алуминиева дограма с прекъснат термомост и троен стъклопакет;
Срокът за завършване е до две години от издаване на Разрешение за строеж.
Отличен избор за хора, търсещи спокойствие, природа и качествен начин на живот, без да се лишават от удобствата на града.



