АДРЕС продава:
Двуетажна къща с РЗП: 148,8 кв.м. в парцел с площ от 273 кв.м С АКТ 15 !!!
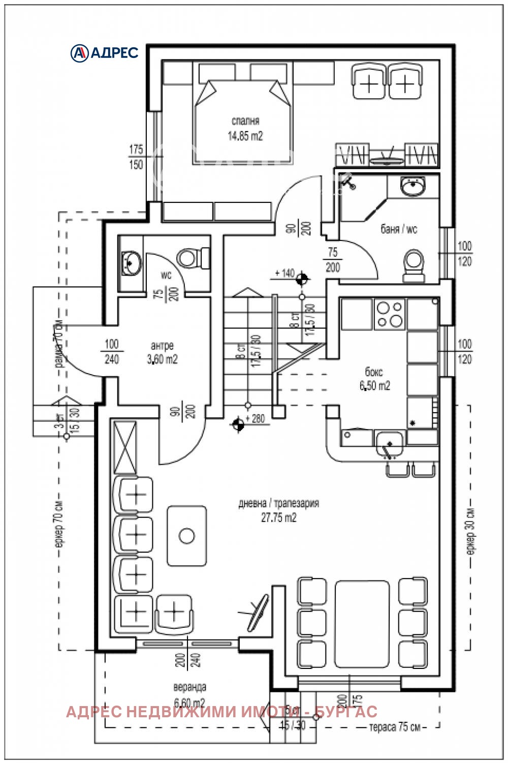
Партер - състои се от антре, дневна с трапезария и кухненски бокс, WC и веранда.
Етаж 1 - състои се от спалня и баня с WC и коридор / стълбище.
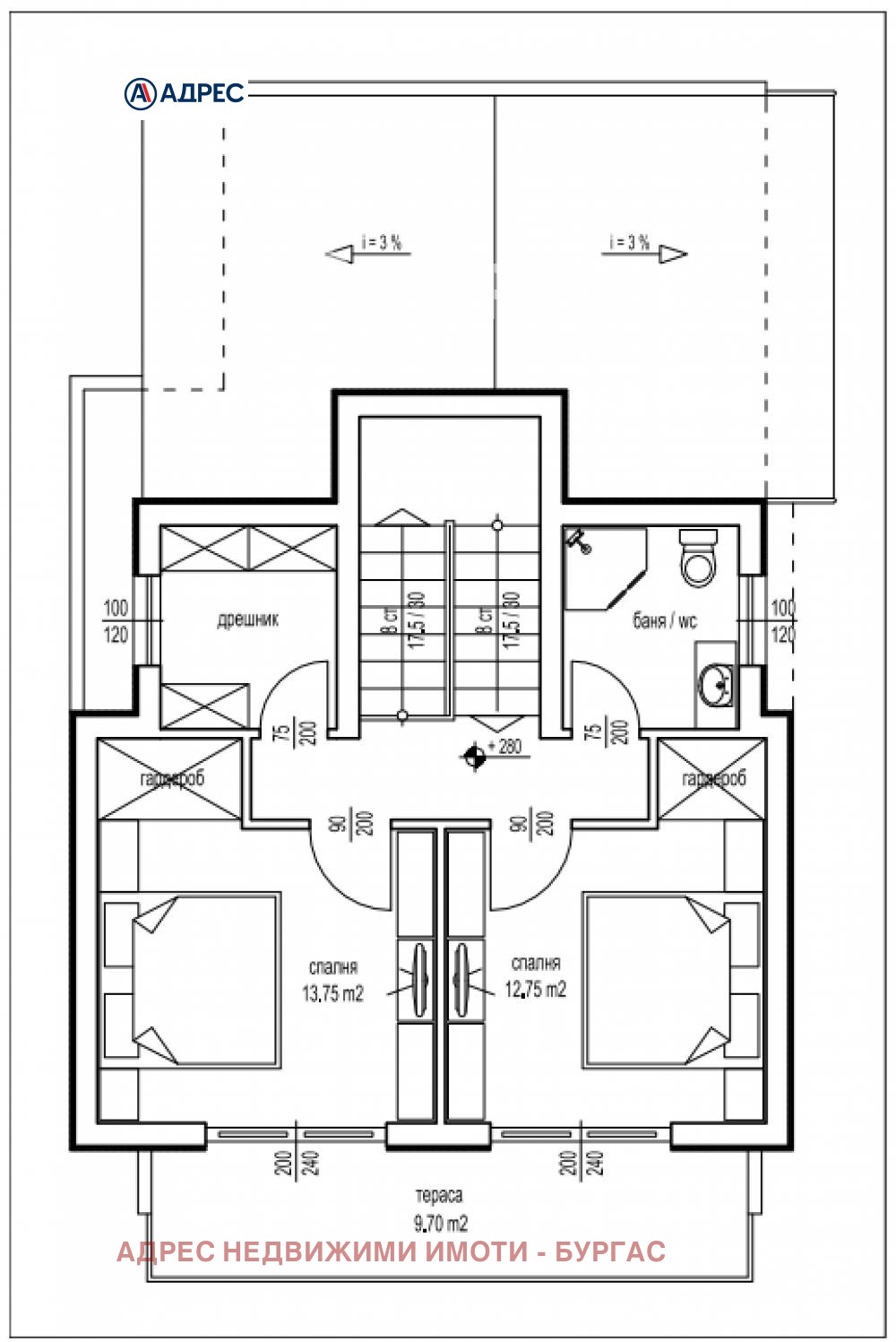
Етаж 2 - състои се от две спални, дрешник, бани с WC и тераса.
Степен на завършеност: Акт 15
Предстоящ Акт 16 !
Схема на плащане: По договаряне !
с. Лъка се намира на 15 км от гр. Бургас и е отлична локация за живеене в спокоен район и същевременно на комуникативно и близко разстояние от гр. Бургас. На 8 км от гр. Поморие и на 5 минути с автомобил от летища Бургас !
Монолитна сграда със съвременна архитектура. Издава се на тапа като строителя прдоставя възможност за завършване до ключ по желание на купувача. Цена по договаряне.
Имотът и инвеститорът предоставят възможност за финансиране с ипотечен кредит !
Обади се сега и цитирай този код 652396







