Galiano Estates представя нов комплекс от еднофамилни къщи в с. Житен съчетаващ спокойствие, зеленина и бърз достъп до София.
Локацията предлага тишина и чист въздух, без компромис с удобствата на градския живот. Очакваното въвеждане в експлоатация (Акт 16) е планирано за края на април 2027 г. Комплексът включва общо 15 къщи, 2 самостоятелни, 5 редови и 8 тип близнак. Площите варират от 158,53 кв. м до 269,65 кв. м. Всички къщи се издават по БДС.
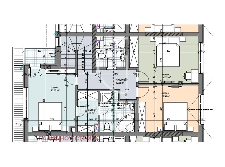
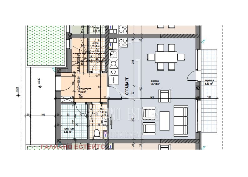
Конкретната оферта е за редова къща 7Г. Общата площ на къщата е 161.06 кв. м., двор 112.09 кв. м. и три външни паркоместа към нея.
Разпределение:
Етаж 1: преддверие, техн. помещ., дневна с кухненски бокс, тоалетна, стълбище към ет. 2
Етаж 2: преддверие, три спални, гардеробно помещение, две бани с тоалетни и тераса.
Схеми на плащания: 10/90, 20/80 или 20/70/10
Цената е без включен ДДС!
Без комисионна от купувача!
Оферта 6995







