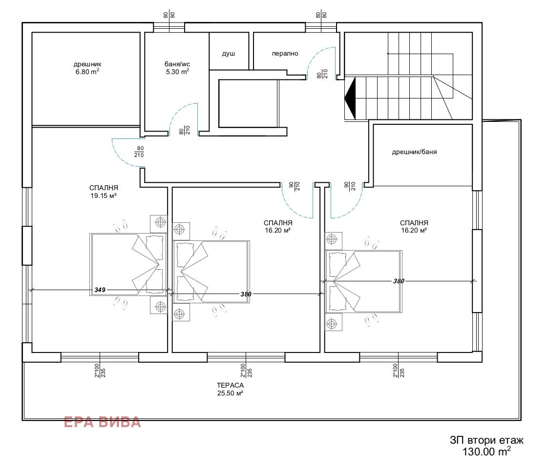
ЕРА Вива предлага за продажба монолитна и модерна къща на три нива в местност Горна Трака, гр. Варна. Имотът е с разгъната застроена площ от 345.3 кв.м. и функционално разпределение на три нива. Полуподземният етаж /107.65 кв.м./ включва двоен гараж, просторно помещение от 37.6 кв.м., подходящо за СПА зона, фитнес или кино салон, както и асансьор с достъп до горните етажи. Първият етаж /107.65 кв.м./ разполага с антре с килер, стълбище към втория етаж, просторна дневна с кухненски бокс и трапезария с площ 68.7 кв.м. и излаз към веранда, както и санитарен възел. На втория етаж /130 кв.м./ са разположени коридор, три спални едната с дрешник, както и допълнителен дрешник към трета спалня, санитарен възел и перално помещение, като всички стаи имат излаз към тераса.
Малък комплекс от седем самостоятелни къщи без такса поддръжка. Към имота има прилежащо дворно място с площ 589 кв.м., което предлага пространство за отдих и уединение. В двора е предвиден собствен басейн, включен в цената на имота, както и удобен достъп до верандата на първия етаж. Къщата ще бъде завършена по БДС с висококачествени материали входна врата, изградени ВиК и електроинсталации, положена заготовка и окабеляване в пода за монтаж на термопомпа, шумо- и топлоизолационна система, както и шесткамерна дограма Rehau Synego с троен енергиен стъклопакет.
Местност Горна Трака предпочитан район за живеене, съчетаващ спокойна среда, зеленина и бърз достъп до града. Локацията осигурява отлична връзка с основни пътни артерии и удобен достъп до централната част на Варна, която се намира само на около 15 минути с автомобил. Районът предлага тишина и уединение, като същевременно е близо до всички необходими удобства за комфортен и модерен начин на живот.







