Unique Estates има удоволствието да Ви представи самостоятелна къща за продажба, част от модерен затворен жилищен комплекс, разположен в местността Детски град , Панчарево - спокойна и зелена зона, утвърдила се като една от най-предпочитаните крайградски локации около София.
Комплексът е изграден върху терен от приблизително 4700 кв.м и включва общо 13 еднофамилни къщи - 6 самостоятелни и 7 редови. Архитектурната концепция съчетава съвременен дизайн и функционалност, като над 70% от площта е отделена за богато озеленяване и общи пространства, създаващи усещане за комфорт и хармонична жилищна среда.
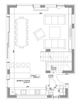
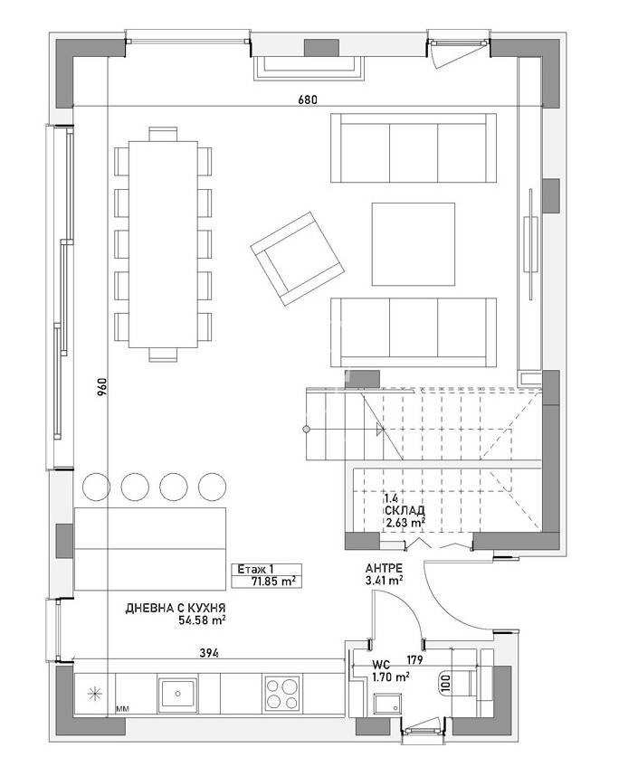
Предлаганият имот е самостоятелна къща с обща площ от 198 кв.м, организирана на две нива с удобно и практично разпределение.
На първия етаж е разположена светла и просторна дневна зона с впечатляващи френски прозорци с височина три метра, които пропускат много естествена светлина и осигуряват директен излаз към веранда и собствен двор.
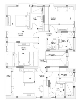
Вторият етаж включва четири спални и дрешник. Всички помещения са с френски прозорци от пода до тавана, които допринасят за усещането за простор и осигуряват максимално естествено осветление.
На първо надземно ниво със светла височина 2,94 м от готов под до окачен таван (строителна височина 3,20 м от плоча до плоча) са разположени антре, просторен дневен тракт с кухня, трапезария и дневна, складово помещение и санитарен възел
На второ ниво височината между котата на готовия под окачен таван е 2,70 м (строителна височина 2,90 м от плоча до плоча) и са разположени четири спални, дрешник, сервизно помещение, тераса и три отделни бани със санитарен възел Цената е без включен ДДС. Ref. ID:29031







