Референтен номер: Sve 138191
Представяме за продажба самостоятелна къща в затворен бутиков комплекс, създаден с мисъл за баланс между уюта на собствения дом и комфорта на организирана среда.
Проектът предлага не само дом, а цялостна концепция за живот модерна архитектура, подредена среда и спокойствие.
Комплексът е разположен в местността Детски град' в Панчарево една от най-предпочитаните крайградски локации в близост до София. Районът съчетава тишината и зеленината на природната среда с лесен достъп до всичко необходимо хипермаркети, търговски центрове, училища, детски градини, ресторанти, банки, болници и спортни съоръжения. Близостта до Околовръстния път осигурява бърза връзка с центъра на столицата и основните пътни артерии.
Проектът заема терен от приблизително 4700 кв.м и включва 13 внимателно проектирани еднофамилни къщи 6 свободностоящи и 7 редови, обединени в хармонично и естетически завършено пространство. Застроената площ на първите етажи варира между 70 и 77 кв.м, а на вторите между 108 и 130 кв.м.
Зелените площи заемат над 70% от терена, създавайки спокойна и уединена среда за отдих и рекреация.
Комплексът разполага с осигурени паркоместа за автомобили и велосипеди, а цялостната вътрешна организация гарантира сигурност и спокойствие за всички обитатели.
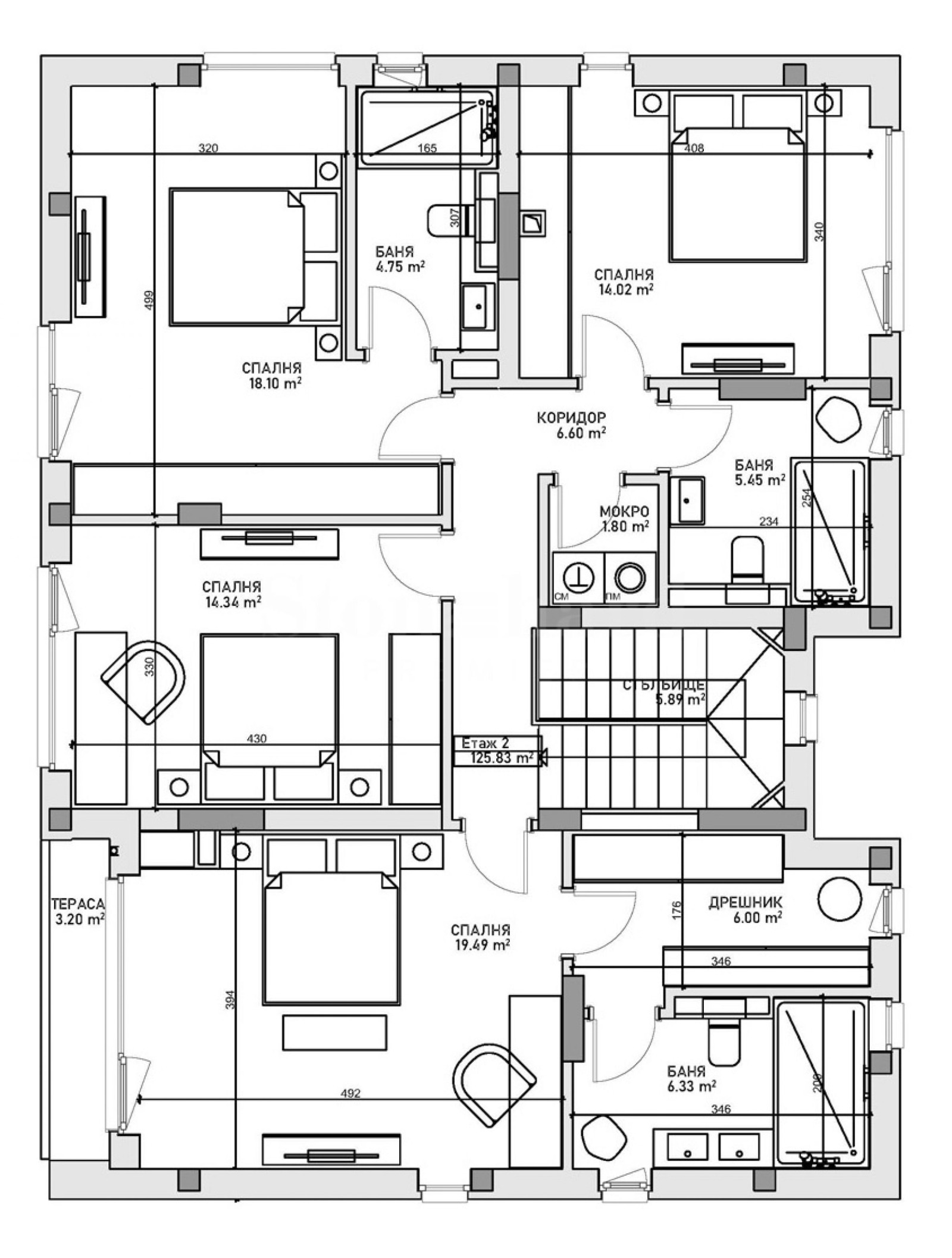
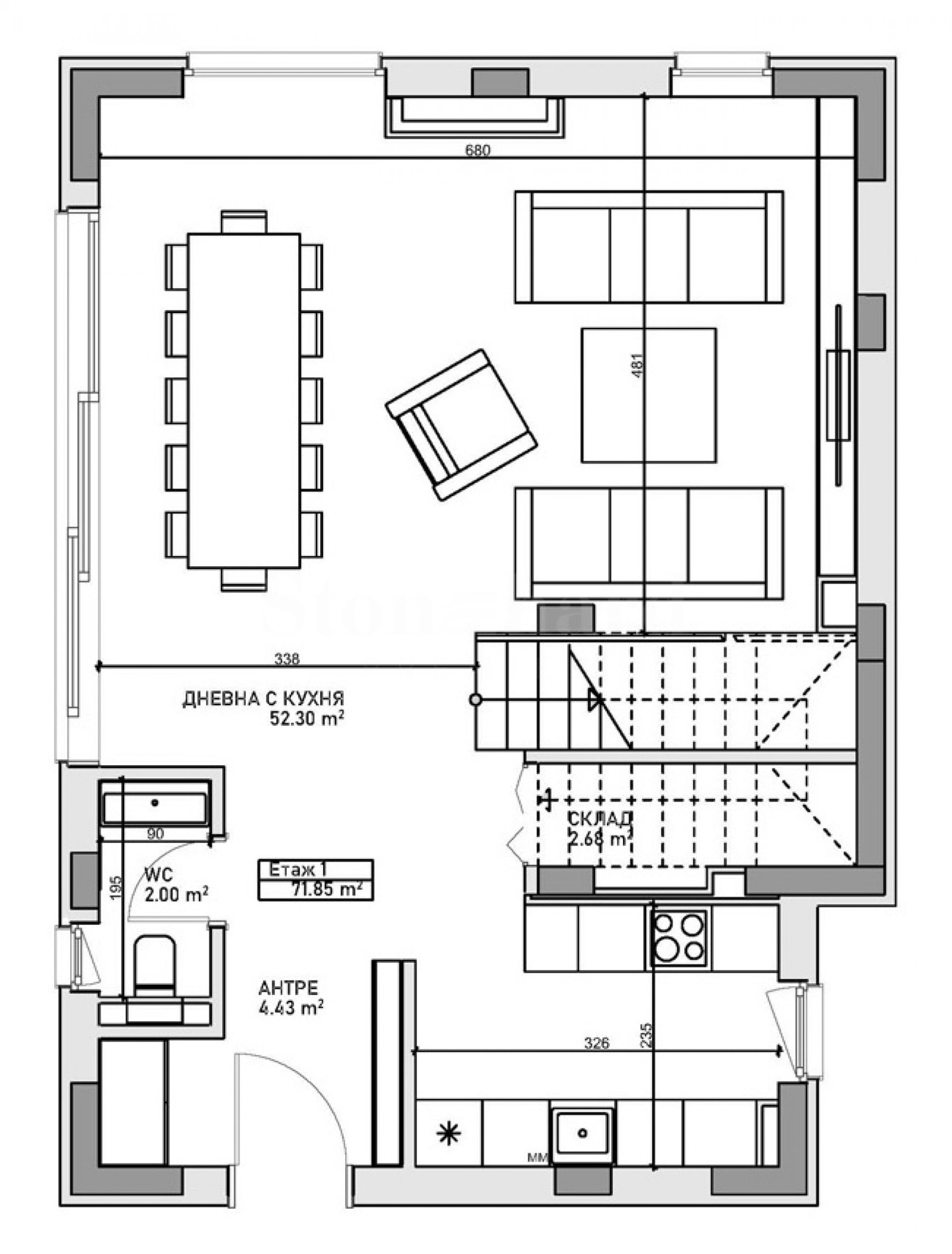
Свободностоящите къщи предлагат просторни дневни зони, обособени кухни с трапезарии и четири спални на втория етаж, допълнени от бани, гардеробни и тераси с гледка.
Редовите къщи са решени с обширна дневна зона на първото ниво и три комфортни спални на второто, допълнени от бани и гардеробни помещения оптимално разпределение за съвременното семейство.
Самостоятелната къща 3 е на два етажа, с обща площ 197.68 кв.м, с двор с ...
Цената на имота е 528 000 евро / 1 032 678.24 лв. без ДДС или 633 600 евро / 1 239 213.89 лв. с ДДС. Данъчен кредит може да се ползва при определени условия.
За повече информация свържете се с нас и цитирайте референтния номер на имота. Моля, кажете, че сте видeли обявата в този сайт.
Референтен номер: Sve 138191
Тел: +359 889 007 010
Моб: +359 877 777 888 (WhatsApp, Viber, SMS)
Отговорен брокер:Стоунхард ПРЕМИЪР
Без комисиона от купувача







