НАПРЕДНАЛО СТРОИТЕЛСТВО !!! СОБСТВЕН ДВОР !!! 4 СПАЛНИ !!!
Представяме Ви просторна и функционална двуетажна къща, разположена в живописното село Студена, в непосредствена близост до град Перник. Имотът се намира в спокоен и зелен район, съчетаващ тишина, чист въздух и удобен достъп до града.
Къщата е с отлично разпределение и собствен двор с площ от 1 декар, предоставящ множество възможности за облагородяване и създаване на комфортна семейна среда.
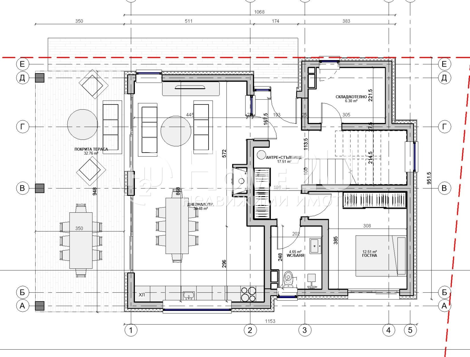
🏡 Разпределение:
Етаж 1:
входно антре
просторна дневна с излаз към веранда
стая / спалня
баня с тоалетна
складово / котелно помещение
Етаж 2:
три спални, всяка с излаз на тераса
две бани с тоалетни
мокро помещение
🌿 Двор и възможности:
Големият самостоятелен двор позволява изграждане на:
басейн
барбекю зона
гаражи или паркоместа
детска площадка
красиво озеленяване по индивидуален проект
Имотът е отличен избор както за целогодишно живеене, така и за уютен семеен дом извън градската среда, без да се лишавате от удобствата на близкия град.
📞 За повече информация и оглед се обадете и цитирайте код: 134 472



