Grand View Estates представя Къща с просторен двор в бутиков комплекс със застроена площ от 305 кв.м и 227 кв.м. собствен двор и веранда. Разполага с 3 спални, 4+1 бани, винарна, панорамна тераса и 2 кабинета за работа от дома. Този елегантен и функционален дом, предоставя перфектната комбинация от комфорт, естетика и съвременни технологии и е символ на модерния начин на живот.
Свържете се с нас, за да организираме оглед!
Престижен, бутиков затворен комплекс от 6 еднофамилни къщи, разположени на слънчев терен от 2 137 кв.м. във в.з. Киноцентъра-част1 в Драгалевци на с уникална гледка към Витоша и в непосредствена близост до спирки на градски транспорт , супермаркети, училища и детски градини, с бърз достъп до Околовръстния път. Това е престижен и тих квартал, с еднофамилни къщи в района, осигуряващ чист въздух и спокоен живот в полите на Витоша.
Затвореният комплекс е проектиран да предложи комфорт и уединение, а практичното разпределение на къщите и висококачествените материали осигуряват удобство на живущите, въздух и естествена светлина в помещенията, необходимите складови помещения за семейството, както и зелена околна среда.
Основни характеристики на къщата:
Съвременна архитектура с изчистени линии и висококачествени материали.
Енергийно ефективна алуминиева дограма и възможност за отопление и охлаждане чрез термопомпа или газ.
Озеленен двор с автоматична поливна система и ограда, осигуряващи уединение.
Възможност за монтаж на соларни панели.
Комплексът предлага също контролиран достъп, алеи за автомобили и пешеходци, както и изградено алейно осветление.
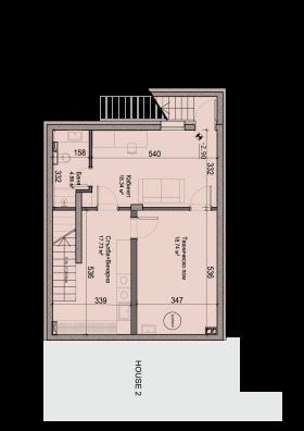
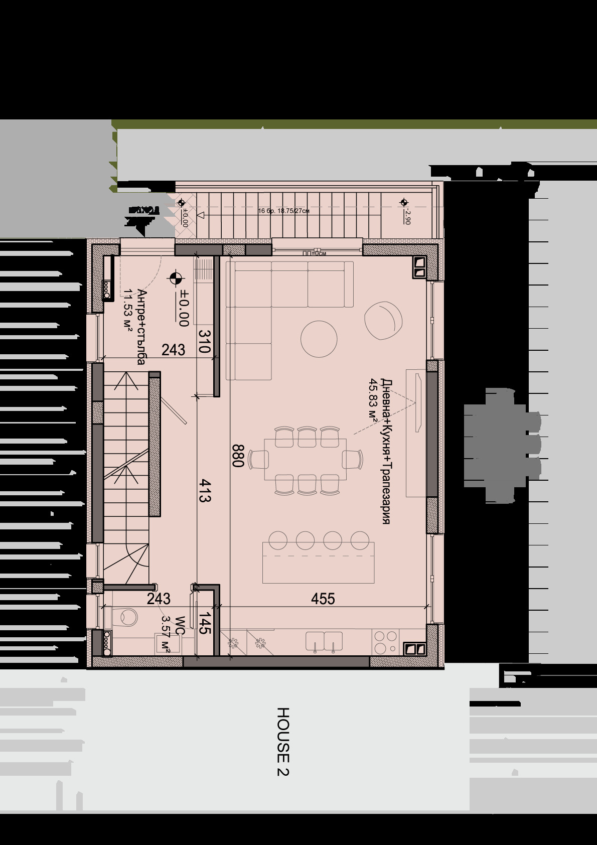
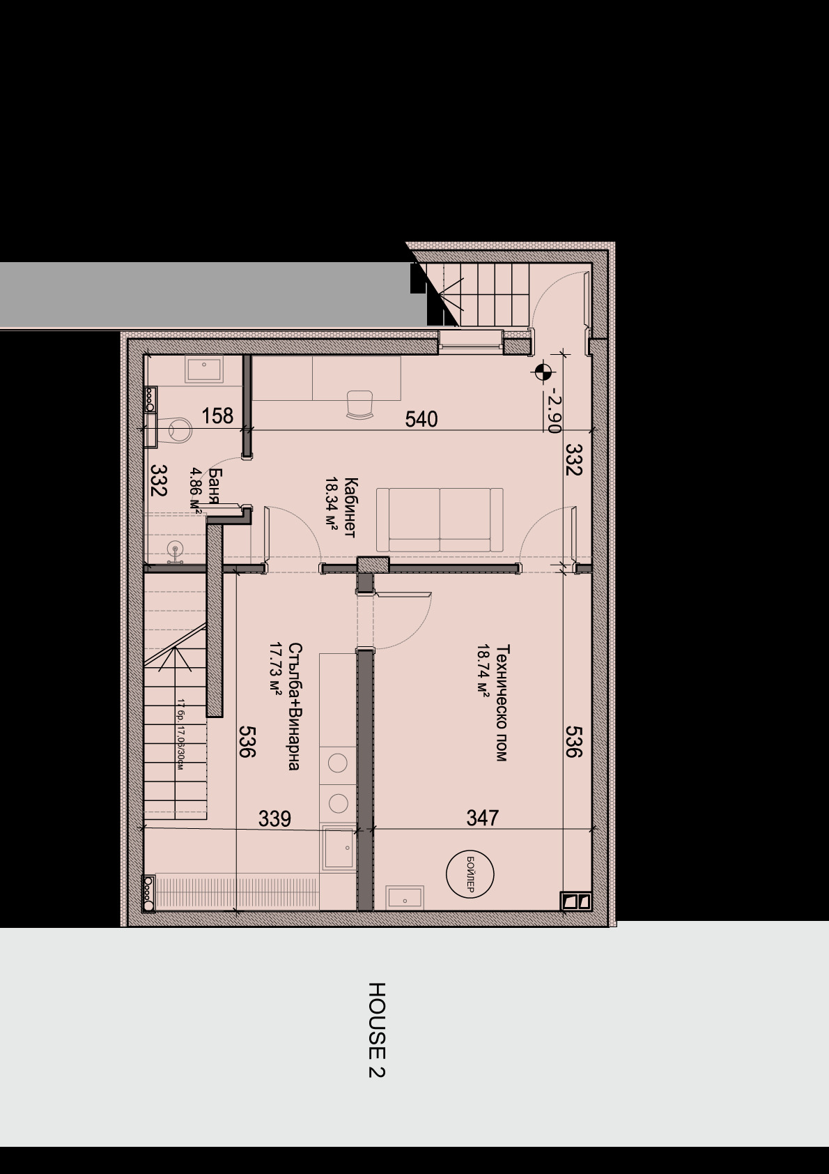
Комплексът се състои от 6 еднофамилни къщи: 2 редови Къща 1 с РЗП от 304,60 кв.м. и Къща 2 с РЗП от 345,00 кв.м., и 4 редови къщи Къща 3 с РЗП от 371,00 кв.м., Къща 4 с РЗП от 394,70 кв.м., Къща 5 с РЗП от 394,70 кв.м. и Къща 6 с РЗП от 368,10 кв.м. Всяка къща е на четири етажа, от които три надземни жилищни и един полуподземен етаж с по две или три паркоместа, складови и сервизни помещения, като само при къща 1 полуподземното ниво е с английски прозорец и възможност за фитнес/изба/стаи, а две паркоместа са осигурени на кота терен със самостоятелен достъп за тази къща.
Всяка къща разполага с: обширна дневна с трапезария и кухня; 4 спални и работен кабинет и/или гардеробно помещение, а четирите по-големи къщи са с възможност за преустройство към 5 спални (4 спални по одобрен проект и възможност да се обособи още една на партер нивото до дневната стая); с по 3 бани с WC и отделна WC за гости до дневната; мокро помещение за пералня, сушилня и гладачна маса; складови помещения; техническо помещение; тераси с чудесни гледки към Витоша и към София; самостоятелен двор с декинг за барбекю зона; с по 2 или 3 паркоместа.
Светла височина на приземен етаж е 2,90 м., на останалите жилищни етажи е 2,70 м., а на подземния етаж е 2,60 м.
Всяка къща има самостоятелен двор и собствени, самостоятелно функциониращи системи и инсталации, т.е. всяка къща е със самостоятелна поддръжка. Общи за комплекса са контролирания достъп през централен вход с вътрешни автомобилни алеи, алейното осветление и общото видеонаблюдение по периметъра на комплекса, които ще имат споделена поддръжка за живущите в комплекса.







