Оферта 29! БЕЗ КОМИСИОННА! СУПЕР ЦЕНА! ПРЕД АКТ 14! ДОКАЗАН ИНВЕСТИТОР!
Агенция АТОЛ ЕСТЕЙТ Ви представя: Страхотна ЕДНОЕТАЖНА КЪЩА в с. Първенец, обл. Пловдив.
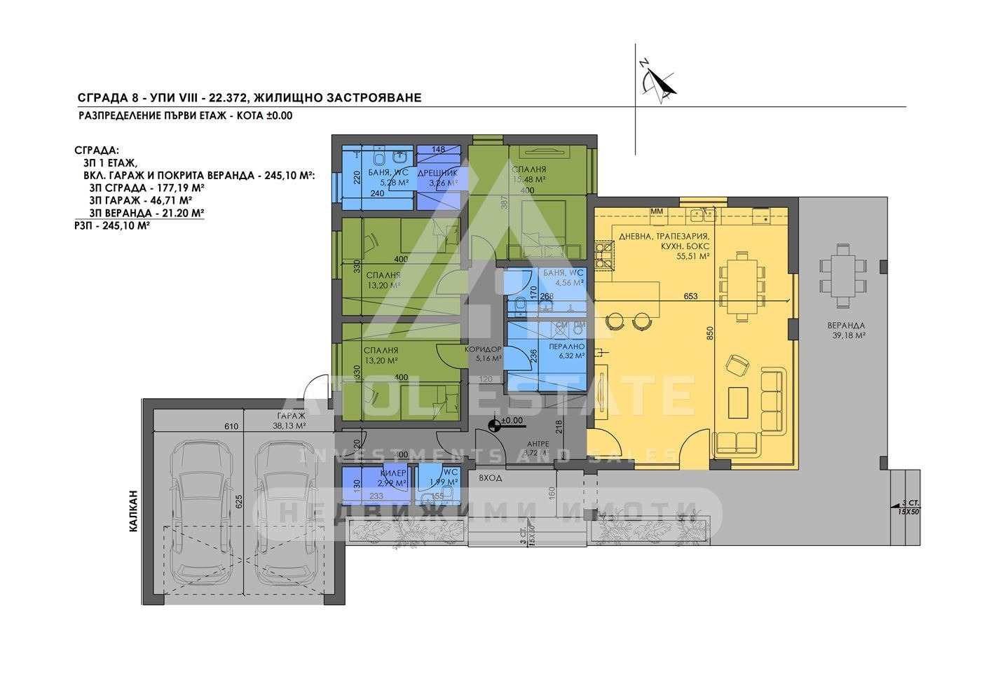
Характеристики:
- Просторно и функционално разпределение
- Луксозна и модерна фасада
- Разположени на асфалтирана улица
Комплексът от къщи предлага спокойствие, комфорт и отлична локация.
Предлагаме и професионално кредитно посредничество при ипотека, потребителски кредит и рефинансиране!







