LUXIMMO FINEST ESTATES: www.luximmo.bg
Представяме къща със самостоятелен двор, част от нов жилищен проект с ясно изразена архитектурна концепция и високи стандарти на изпълнение. Имотът е разположен в самостоятелен парцел с площ между 459 и 518 кв.м и предлага комфортна жилищна среда, ориентирана към дългосрочно обитаване.
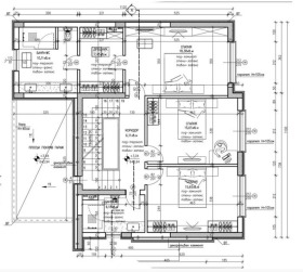
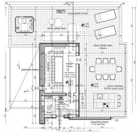
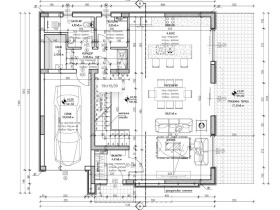
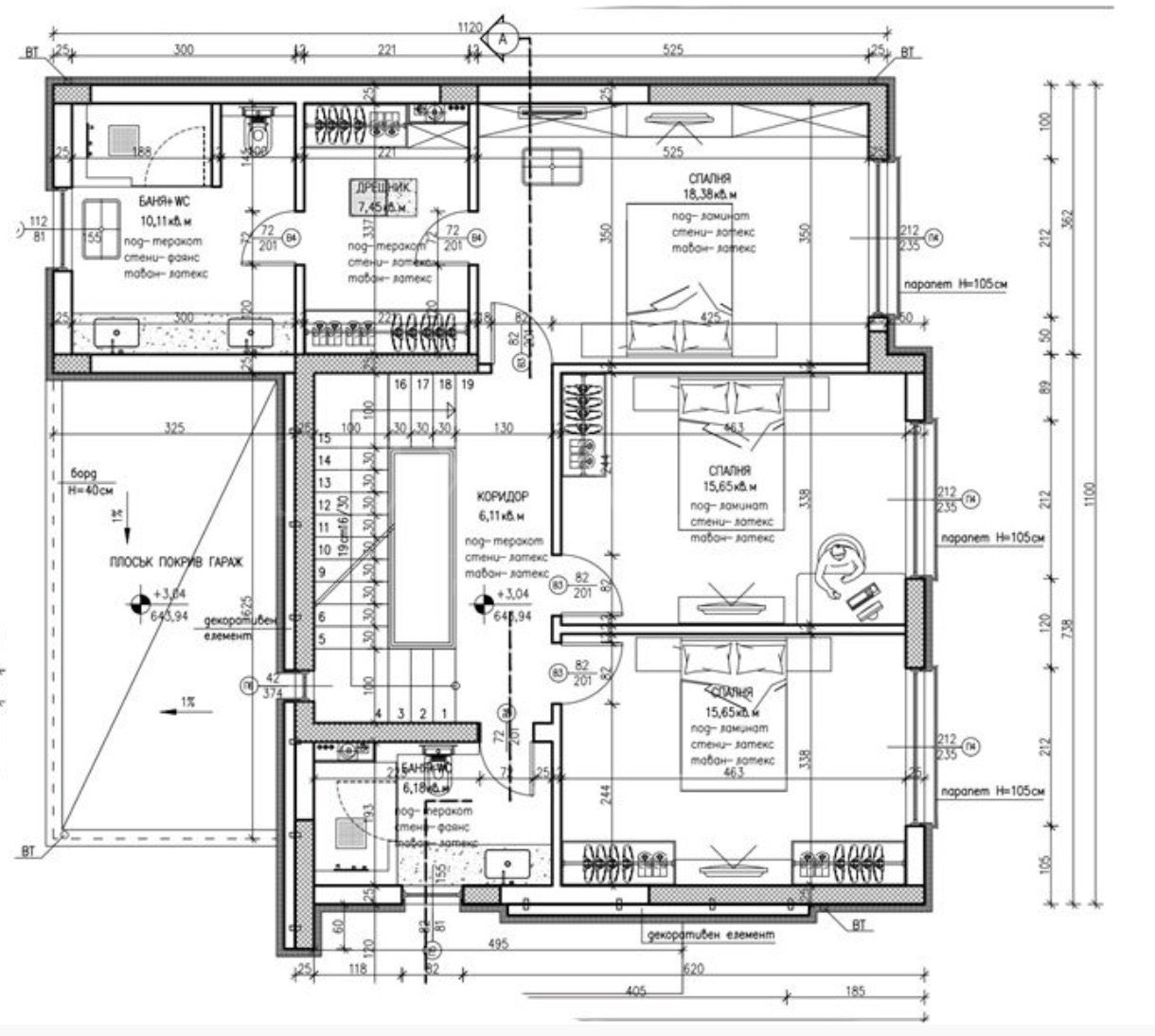
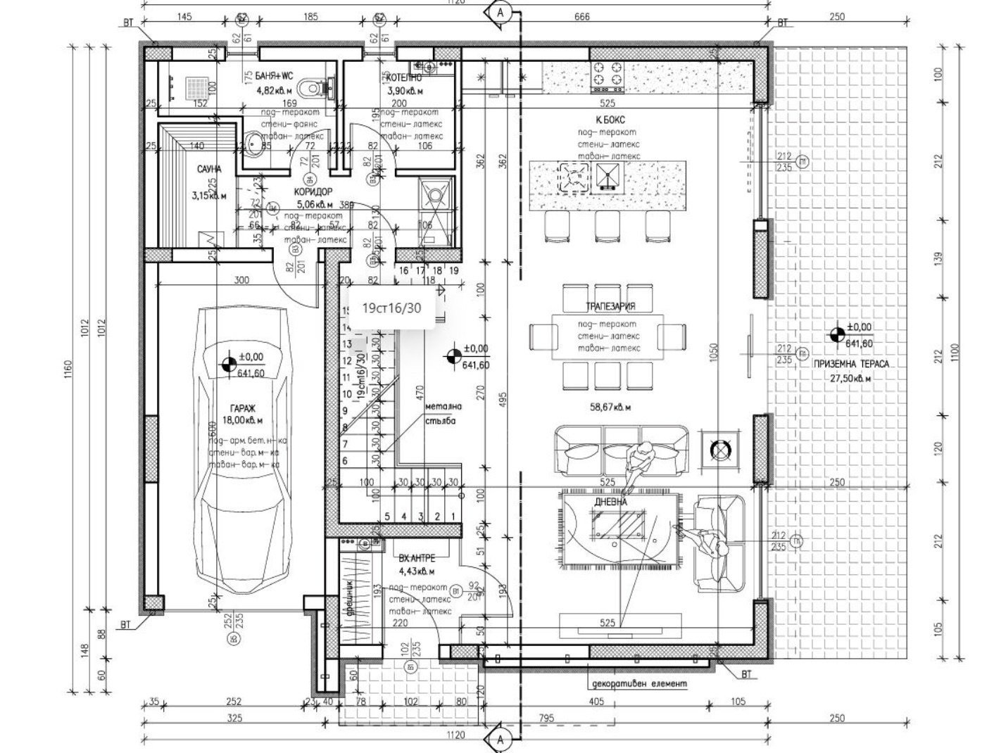
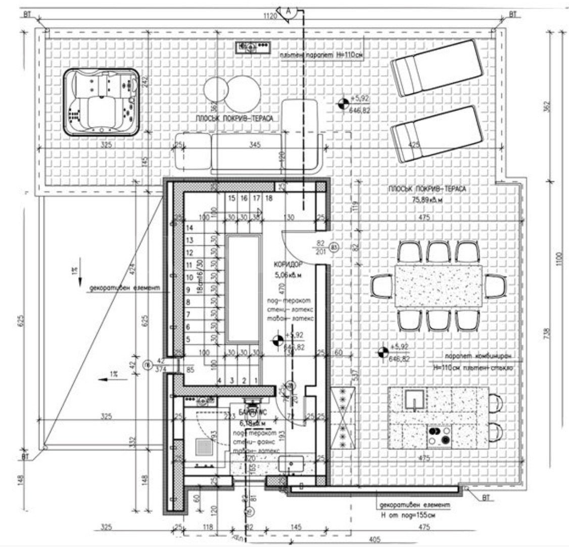
Къщата разполага със застроена площ от 120 кв.м и разгъната застроена площ от 328,10 кв.м, разпределена на функционални нива. Предлага се завършена до етап, който позволява довършване и интериорно решение според предпочитанията на бъдещия собственик.
Сградата е изпълнена с монолитна стоманобетонна конструкция, външни стени от тухли Wienerberger Porotherm 25 см и вътрешни преградни стени от Porotherm 12 см. Фасадното решение комбинира топлоизолационна система с дебелина 10 см и окачена фасада с каменна вата и HPL елементи с дървесен декор, допълнени от алуминиеви парапети. Покривът е плосък, изпълнен с PVC мембрана с UV защита.
Жилищните помещения са завършени с машинна гипсова мазилка по стени и тавани, подовете са на машинна циментова замазка, а балконите са изпълнени с мразоустойчив гранитогрес. Гаражът е със шлайфана циментова замазка, а входните и дворните врати са метални, с предвидени ролетни или тип летящо крило гаражни врати. Дограмата е петкамерна PVC с троен стъклопакет и нискоемисионно стъкло.
Отоплителната инсталация включва изградена система за подово отопление и подготовка за конвектори за охлаждане, без монтирана термопомпа. Вентилацията е решена чрез PVC канали в санитарните помещения и коминни тела за кухненските абсорбатори.
Електроинсталацията е трифазна, с двойнотарифни електромери, изградено централно ел. табло, апартаментни табла с автоматични предпазители, TV-NET инсталации, гръмоотвод и подготовка за видеонаблюдение. Осветителни тела са монтирани по фасадите и терасите.
ВиК системата е изпълнена с PPR водопровод и PVC канализация до тапа, като към имота са изградени собствен ...
За повече информация свържете се с нас и цитирайте референтния номер на имота. Моля, кажете, че сте видeли обявата в този сайт.
Референтен номер: SOF-137814
Тел: 0988 154 591, 02 451 47 83
Отговорен брокер:Иван Чилов
Без комисиона от купувача



