ЕРА Вива предлага за продажба триетажна къща в строеж, разположена в един от най-живописните и спокойни райони на град Варна местност Сълзица. Имотът е пред Акт 14, с планирано завършване и издаване на Акт 16 през 2026 г. Със своята обща застроена площ от 179 кв.м, къщата впечатлява със съвременен архитектурен стил, висококачествени материали и функционално вътрешно разпределение, създаващо усещане за уют и простор. Изложението на имота е югоизток/югозапад, което осигурява естествена светлина през целия ден, както и впечатляваща, нескриваема панорама към града, Варненското езеро, нос Галата и морето.
Първи етаж: входно антре, просторна дневна с кухненски кът /33.77 кв.м./ с излаз към широка веранда, баня с тоалетна и склад под стълбището.
Втори етаж: три спални /съответно 14.5 кв.м., 13.6 кв.м. и 11.18 кв.м./, баня с тоалетна и балкон.
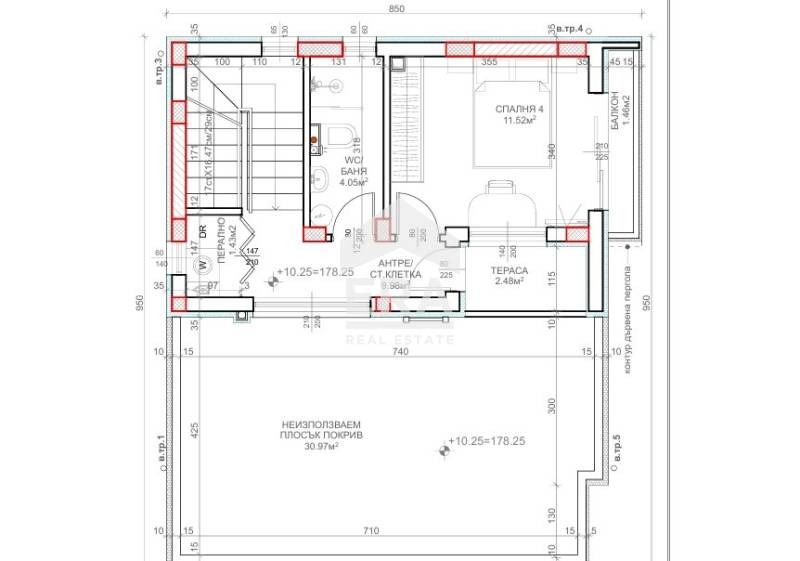
Трети етаж /подпокривно ниво/: четвърта спалня /11.5 кв.м./, баня с тоалетна, перално помещение, тераса, балкон и достъп до плоския покрив.
Къщата се предлага по БДС на шпакловка и замазка, което дава възможност на бъдещите собственици да я завършат по свой вкус. В цената са включени и две паркоместа.
Местност Сълзица се характеризира с чист въздух, красиви гледки и усещане за тишина и уединение. Районът осигурява удобен достъп до главни пътни артерии и градски транспорт, което гарантира бърза връзка с централните части на Варна. Това го прави предпочитан избор за хора, търсещи спокойствие, без да се лишават от удобствата на града. Интериорните визуализации са примерни, а екипът на ЕРА Вива съдейства при необходимост от жилищен кредит, за да превърнете тази къща в своя нов дом.
Оферта 1009629



