Агенция SUPRIMMO: www.suprimmo.bg
Представяме за продажба двуетажна къща, част от ансамбъл от четири новостроящи се еднофамилни къщи в с. Маринка. Бургас.
Има Акт 14. Очакван Акт 16 - октомври 2026 г.
Имотът е с РЗП - 265 кв.м, разположен върху парцел с площ - 585 кв.м, гараж и паркоместа за два автомобила.
Модерна визия и функционално разпределение.
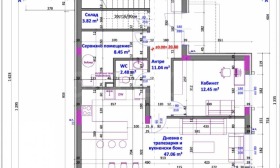
Етаж 1:
антре/коридор - 11,04 кв.м.
дневна с кухня - 47,06 кв.м.
кабинет - 12,45 кв.м.
сервизно помещение - 8,45 кв.м.
тоалетна - 2,48 кв.м.
гараж - 15,89 кв.м.
склад към гаража - 5,78кв.м.
Етаж 2:
основна спалня - 18,36 кв.м, с дрешник - 7,49 кв.м и баня - 5,55 кв.м.
втора спалня - 14,40 кв.м.
трета спалня - 11,16 кв.м.
втора баня - 5,55 кв.м.
мокро помещение - 5,55 кв.м.
голяма тераса с достъп от основаната спалня - 11,43 кв.м.
малка тераса - 4,29 кв.м.
Къщата се издава в степен на завършеност по БДС, на шпакловка и замазка, безкомпромисно качество на строителството. Монолитна конструкция, изпълнена с най-висок клас строителни материали и прецизност към всеки детайл:
монтирана дограма с троен стъклопакет Synego от Rehau;
витрина към веранда - ЕТЕМ с отваряне на вратите тип Hebe Shibe;
блиндирана входна врата - ETEM.
Подходяща е както за постоянно живеене, така и като лятна вила, поради близостта до морето.
Технически характеристики:
тухли - CLIMATON;
фасадни стени - тухлена зидария 25 см.
вътрешните преградни - тухлена зидария 12 см.
инсталационни пакети в баните - влагоустойчив гипсокартон - 5 см.
външните стени - мазилка с топлоизолация EPS - 12 см.
еркерите и терасите над помещения с топлоизолация XPS - 12 см.
Локация
Къщите са разположени в новата част на селото, където се оформя чисто нов квартал с модерна визия и ...
Цената на имота е 299 999 евро / 586 747.04 лв. без ДДС или 359 998 евро / 704 096.45 лв. с ДДС. Данъчен кредит може да се ползва при определени условия.
За повече информация свържете се с нас и цитирайте референтния номер на имота. Моля, кажете, че сте видeли обявата в този сайт.
Референтен номер: LXH-137416
Тел: 0884 208 938, 05 670 79 29
Отговорен брокер:Отдел продажби Бургас
Без комисиона от купувача







