ARCO REAL ESTATE предлага къща в с. Панчарево, на три етажа със следното разпределение: четири спални, отворена кухня, две бани с душ кабини/тоалетни, тоалетна, складово помещение, стая за релакс, гараж за две коли. Къщата е с обща площ 309 кв.м. (нетна площ 249. 84кв.м.), плюс тераса 58.95 кв.м. и 200 кв.м. двор.
Проекта се намира Англо-американското училище, на десет минути от центъра на столицата и до новоизградения пътен възел на Самоковско шосе и Околовръстен път. До обекта е разположено и Панчаревското езеро, носещо спокойствие, много зелени гледки и прохлада през горещите дни.
Отоплението на помещенията на сградата през зимата се осигурява от термопомпа въздух-вода и радиаторно отопление.
Достъпът до Боровец е удобен и позволява целогодишно посещение.
Възможност за асансьор!
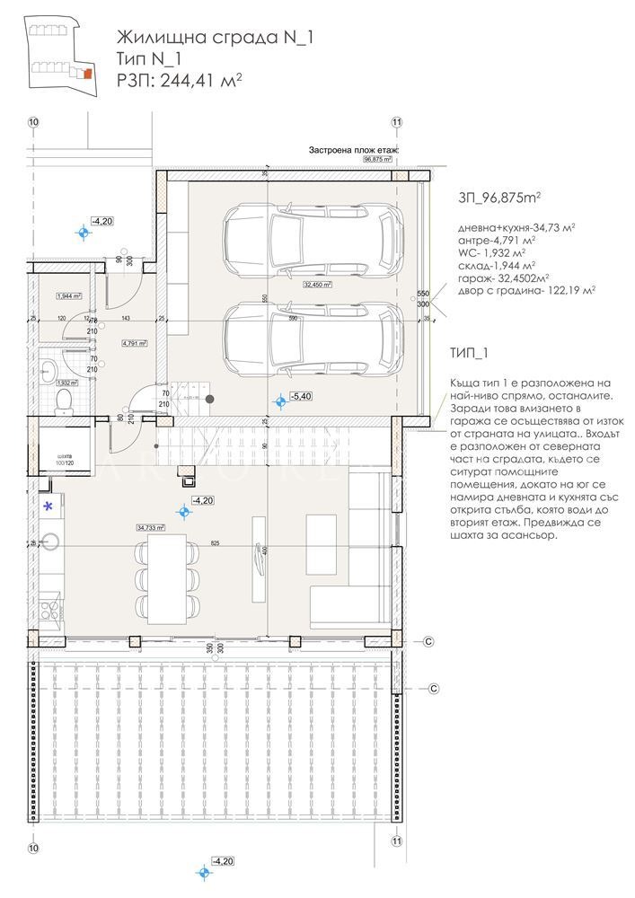
Къщите са с 4 спални и следното разпределение:
1-ви етаж: дневна и кухня, антре, тоалетна, склад, гараж;
2-ри етаж: голяма родителска спалня, детска стая и стая за гости с дрешник, която може да се трансформира във втора детска стая, две отделни бани и общ дрешник;
3-ти етаж: последното ниво се състои от отворено пространство, чиято функция осигурява място за почивка и офис, легло и баня.
Зелени площи за общо ползване: 695,89 кв.м.
Алеи, подходи и паркинг за гости: 656,67 кв.м.
Разположени на естествен хълм, осигурява максимално слънцегреене през всички годишни сезони, както и гаранция за чист и свеж въздух на крачка от града. Достъпът се осъществява по съществуваща инфраструктурна мрежа в отлично състояние, като комплексът също така ще бъде свързан и с централната канализация.
Районът е населен и застроен с нови и красиви къщи.
Парцелът се намира само на 600 м. (или 3 минути с кола) от Англо-американското училище, на 13 км. от идеалния център на столицата и на 1.8 км. (или 4 минути с кола) от новоизградения пътен възел на Самоковско шосе и Околовръстен път, благодарение на който връзката с всяка точка на града е бърза и удобна. А само на 5 минути от там е разположено и разкошното Панчаревско езеро, осигуряващо прохлада и отмора през топлите дни, както и възможност за различни спортни активности, а дори и пространство за впечатляващи културни мероприятия като откритата сцена на Софийска опера и балет, изградена през лятото на 2021-ва година. Достъпът до Боровец е удобен и позволява редовно практикуване на зимни спортове от всички желаещи.
Относно поддръжката и управлението на комплекса и неговите общи части, е ангажирана реномираната компания PropertyManagement.BG. Месечната такса предстои да бъде уточнена на първото общо събрание на собствениците, което ще бъде проведено веднага след въвеждане на сградите в експлоатация (получен Акт 16). Според избраните от живущите услуги, гласувани с мнозинство, ще бъде получена оферта за месечна такса поддръжка, която ще бъде пазарно съобразена и ценово оптимална. Управлението и поддръжката на комплекса ще се изпълняват по метода на 'отворената книга', при спазване на пълна прозрачност на разходването на средствата, чрез редновни финансови отчети, които ще са достъпни за всеки един от обитателите в комплекса.
Конструкцията на сградите е монолитна, със стоманобетонни колони, шайби, греди и плочи. Външните стени са тухлени от решетъчни тухли Винербергер , покривът е топъл плосък. Отоплението на помещенията на сградата през зимата се осигурява от термопомпа въздух-вода .Термопомпата вода-въздух е на директно изпарение, инвертор, с вътрешно и външно тяло. Връзката помежду им е с медни, топлоизолирани тръби. Прозорците и вратите са PVC-петкамерни и алуминиеви витрини на първите етажи, входната врата е от масив.
Акт 14: юли 2025 г.
Акт 15: Януари 2025 г.
Акт 16: май 2026 г.
Първоначална вноска при подписване на предварителен договор 35%
Вноска Акт 14 20%
Вноска монтирана дограма 20%
Вноска мазилка 15%
Вноска Акт 15 5%
Вноска Акт 16 5%
Зад проекта стои строителна компания с повече от 15-годишен опит в изграждането на жилищни проекти. Екипът е съставен от строителни инженери, проектирали и изградили голям брой жилищни сгради в столицата.
Код на оферта: 104688
За повече информация: Емилия Емилова: 0894505921







