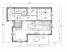
ЯВЛЕНА представя на вашето внимание новострояща се къща с Акт 14, на две нива с РЗП 243 кв.м в самостоятелен парцел 523 кв.м. Изключително функционално разпределение на I-во ниво : входно антре, просторен дневен тракт с излаз на голяма и слънчева веранда, кабинет 12 кв.м, баня с тоалет и склад . На II-ро ниво са разположени 3 спални - спалня 14 в.м със собствен дрешник от 6 кв.м, спалня 16 кв.м със собствена баня с тоалетна и спаллня 17 кв.м. с дрешник и излаз на голяма тераса обща със съседната спалня, както и баня с тоалетна на етажа.
Къщата е проектирани с плосък покрив с възможност за монтиране на фотоволтаична система. Строителството се изпълнява по най-съвременни технологии с модерни материали. Ще бъде монтирана цялостна топлоизолация. Висок клас дограма. Възможност за СМАРТ електрическа система с контрол чрез мобилния ви телефон.
Две паркоместа в двора с възможност за зареждане на ел. автомобили.
Дворът е разположен в слънчев парцел с морска панорама, близо до гора. Директен излаз на улица и бърз достъп до главен път. В целогодишно населен район, но същевременно уединен и спокоен.
Хранителни магазини, пазари, заведения, училище, детска градина и всички удобства за живота са на кратко отстояние. Автобусна спирка на редовна градска линия на разположение.
Възможност за гъвкаво плащане. (yavlenaCOM/143505).







