🏡 Нова двуетажна къща пред Акт 16 | гр. Костинброд
Равен двор | Южно изложение | Нова асфалтирана улица
4 спални
Агенция Nine Properties предлага за продажба новопостроена двуетажна къща, разположена на ул. Обединена, гр. Костинброд, в тиха и развиваща се жилищна зона.
Имотът е пред въвеждане в експлоатация (Акт 16) и разполага с:
РЗП: 220 кв.м
Двор: 353 кв.м
Използваемо подпокривно пространство
Къщата е проектирана с функционално разпределение, осигуряващо комфорт и възможност за преустройства според индивидуалните нужди на бъдещите собственици.
⸻
📐 Разпределение
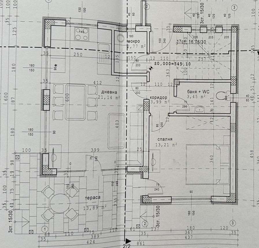
Първо ниво:
Входно антре
Просторна всекидневна с кухненски бокс и излаз към веранда
Стая (13 кв.м., южно изложение) подходяща за спалня или кабинет, с излаз към верандата, възможност за обединяване с всекидневната и оформяне на общо пространство от 34 кв.м
Баня с тоалетна
Мокро помещение
Подстълбищна ниша (склад)
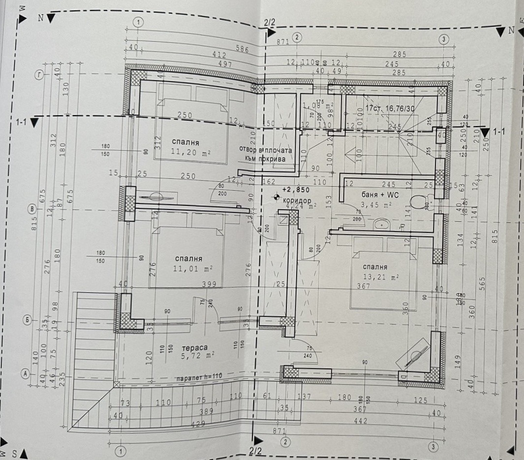
Второ ниво:
Родителска спалня 13 кв.м., южно изложение, с излаз към тераса
Детска спалня 11 кв.м., южно изложение, с излаз към тераса
Втора детска спалня 11 кв.м., западно изложение
Складово помещение
Баня с тоалетна
Трето ниво:
Използваемо подпокривно пространство с добра средна височина
📌 В обявата са приложени разпределения на етажите.
🎥 При желание може да бъде предоставена видео разходка на имота.
⸻
🛠️ Използвани материали
PVC дограма VEKA с троен стъклопакет
Тухли Wienerberger
Топлоизолационна система Baumit 15 см.
Керемиди Tondach
⸻
🌡️ Отопление
Предвидено отопление на електричество
Възможност за газ
⸻
🅿️ Допълнителна информация
Възможност за обособяване на външни паркоместа с навес в двора
Свободно паркиране на улицата
⸻
📚 В близост
СУ д-р Петър Берон
Професионална гимназия по ветеринарна медицина и селско стопанство Св. Георги Победоносец
Детска градина Радост
⸻
📞 Оглед и резервация
Огледи се организират в удобно за Вас време.
Имотът може да бъде резервиран с депозит, след което се прекратяват рекламните действия и се стартира подготовка за предварителен и окончателен договор, съобразно индивидуалните параметри на сделката.
✔️ Пълно съдействие при ипотечно кредитиране, без допълнителни такси за клиентите ни, със съдействието на водеща консултантска компания в сектора.
⸻
📩 Контакти:
📧 [email protected]
☎️ +359 89 673 6243





