Референтен номер: PLV-136950
Редова къща с панорамна гледка към Пловдив - с. Белащица
Представяме нова редова къща в малък, бутиков комплекс, разположен в една от най-желаните локации край Пловдив с. Белащица. Районът е предпочитан заради спокойната си среда, високия клас застрояване и изключителните панорамни гледки към града.
Комплексът е в процес на строителство, а Акт 16 е планиран за юни 2026 г. Разполага с контролиран достъп, асфалтов път и частна вътрешна улица.
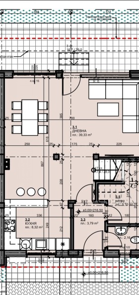
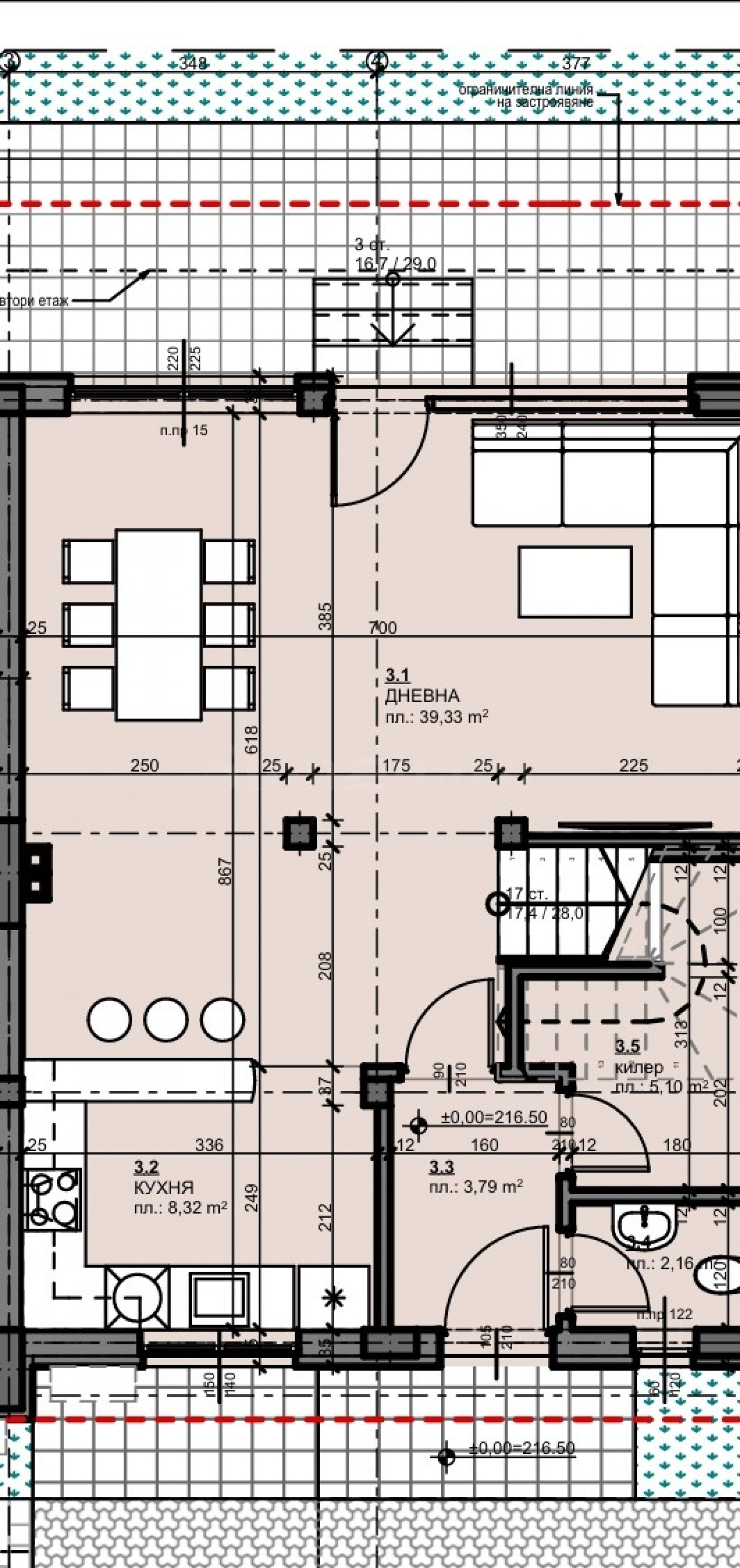
Имотът с РЗП 153 кв.м е на два етажа и има двор с площ от 141 кв.м.
Разпределение:
първи етаж - входно антре с тоалетна за гости и килер под стълбището, просторна дневна зона (около 40 кв.м) с отделен кухненски бокс (10 кв.м) и излаз към веранда и двор;
втори етаж - две детски спални, баня и родителска спалня със собствена гардеробна, баня, тавански склад и тераса с впечатляваща гледка към Пловдив.
Технически характеристики и предимства
двойни зидове между къщите за по-добра шумоизолация;
френски прозорци с дограма от висок клас;
ток, вода и собствена пречиствателна станция;
спокойна жилищна среда с бърз достъп до града.
Интериорните визуализации са примерни.
Очакваме Вашето запитване
Ако желаете да организирате оглед на имот, който Ви интересува, или да посетите някой от нашите офиси, моля свържете се с нас. За да уговорите ден и час за среща или оглед, можете да се обадите на посочения в обявата телефон или да изпратите запитване чрез електронната поща. Нашият консултант ще Ви съдейства с всички необходими подробности и ще уговори удобно за Вас време.
Търсите подходящия за Вас имот?
Не се колебайте да се свържете с нас и да ни разкажете за Вашите нужди и предпочитания. Нашият екип ще проведе задълбочено проучване на пазара, за да Ви предложи имоти, които точно отговарят на Вашите критерии. Разполагаме с изключително портфолио от висококачествени и ексклузивни жилища, които са достъпни само за нашите ...
За повече информация свържете се с нас и цитирайте референтния номер на имота. Моля, кажете, че сте видeли обявата в този сайт.
Референтен номер: PLV-136950
Тел: +359 889 007 010
Моб: +359 877 777 888 (WhatsApp, Viber, SMS)
Отговорен брокер:Стоунхард ПРЕМИЪР







