Имам удоволствието да ви представя къща с двор в с. Байлово до с. Горма Малина на 35 минути от София!
За имота:
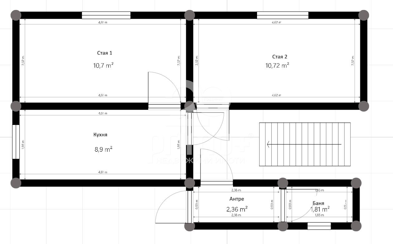
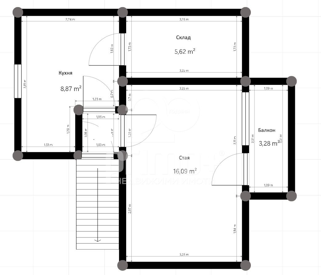
Къщата е построена през 1972 година, на два етажа по 45.5 кв.м. Общо РЗП на имота е 91 кв.м. Дворът е равен и е с площ 605 кв.м.
Разпределение:
На първия етаж имаме 3 помещения, всекидневна с кухня, спалня, хол, санитарен възел, коридор и стълбище. Вторият етаж се състои от три отделни помещения,всекидневна с кухня, спалня и тераса.
Особености:
-покрив за пренареждане на киримидите
-изградена канализация
-вода на водопровод
-ток
-къщата е изчистена и няма мебели вътре.
-за ремонт
-първото ниво е частичен гредоред, второто е плоча.
-има изграден пояс около къщата за здравина и укрепване!
Транспорт и логистика:
-35 минути с кола до входа на София
-има маршрутка от Стадион Герена (София) до с.Байлово
-30 минути с кола до магистрала Хемус
Локация:
-в близост е яз. Огняново
-в близост е яз. Азмак с детска площадка
За повече информация и оглед не се колебайте да се свържете с мен на тел: 0889 902 677 Антон Гинев и на имейл: [email protected]







