Организация Фокус има удоволствието да ви представи самостоятелна двуетажна къща в с. Първенец, обл. Пловдив.
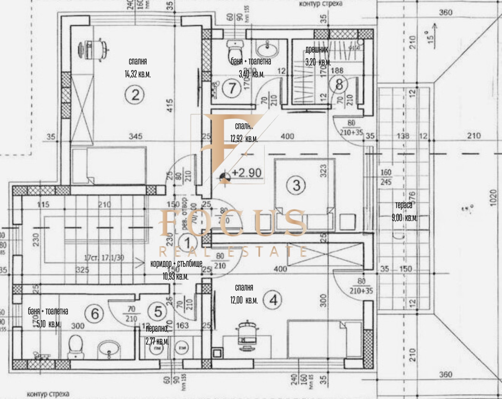
Площ на къщата: 197,43 кв.м
Двор: 400 кв.м
Разпределение:
Първи етаж - входно антре със стълбище, просторна дневна с кухненски бокс, баня с тоалетна, складово помещение и покрита веранда с излаз към двора.
Втори етаж - антре с коридор, три спални, две бани с тоалетни, дрешник и тераса.
Къщата разполага със собствен двор от 400 кв.м, който предоставя достатъчно пространство за градина, зона за отдих или семейно пространство на открито.
Имотът се намира в подножието на Родопите, в спокойна и зелена среда, само на няколко километра от гр. Пловдив.
Очакван срок за въвеждане в експлоатация - декември 2026 г.
За повече информация и организиране на оглед, свържете се с нас.
Референтен номер: 57443







