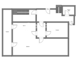
Предлагаме Ви за продажба къща разположена в равен двор от 2500 кв.м. Къщата е с разгърната застроена площ от 362 кв.м., разпределени в полуподземен етаж и три етажа. Покривът е с плоча и е след ремонт, дограмата е сменена. Имотът е със следното разпределение: Полуподземния етаж е със застроена площ от 55 кв.м. и се състои от гараж, склад и мазе. На първия етаж (112 кв.м.) са разположени просторна дневна с трапезария, кухня, коридор, баня с тоалетна, спалня и голяма южна тераса (55 кв.м.). На втория етаж (118 кв.м.) са разположени три самостоятелни стаи, три тераси (6 кв.м, 8,5 кв.м. и 1,5 кв.м., баня с тоалетна. Третия етаж (132 кв.м.) все още не е обособен като пространство, което позволява новия собственик да го разпредели спрямо нуждите си. Къщата разполага с подпокривно пространство, което е светло и просторно.
с. Алдомировци, община Сливница. Селото е добре благоустроено, разполага с няколко хранителни магазина, детска градина, училище, читалище.
Къщата е въведена в експлоатация. Масивно тухлено строителство. Къщата е неизмазана отвън и от вътре. Сменена ел. и ВиК инсталация. Ремонтиран покрив. Сменена дограма. Има сондаж, както и хидрофорна система в къщата. Централен водопровод и канализация.
Къщата е подходящата и за хора търсещи бизнес възможност, тъй като би била подходяща да се развие и като къща за гости. Изрядни докумнети, възможност за покупка с ипотечен кредит.
Обади се сега и цитирай този код 679193







