Unique Estates има удоволствието да Ви представи изключителна къща за продажба, разположен в една от най-предпочитаните и зелени зони край София - Бистрица.
Имотът се отличава с модерен архитектурен стил, висок клас материали и южно изложение, гарантиращо светлина и уют през целия ден.
Сградата е на етап Акт 15, като въвеждането ? в експлоатация с Акт 16 е планирано до края на месец февруари 2026 г. Имотът се предлага за продажба с частично завършени довършителни работи и напълно изградена отоплителна система, като всички използвани материали и технологии са от висок клас.
Фасадата е изпълнена с елегантната система ArteFino, допълнена от стъклени парапети и външно линейно осветление, което подчертава модерната архитектура на сградата. Дограмата е алуминиева с трислоен стъклопакет и двусезонно К стъкло, а зимната градина е оборудвана с тип гилотина дограма с електрическо задвижване.
Вътрешните пространства впечатляват с окачени тавани на две нива с LED осветление, изградена инсталация за СОТ и видеонаблюдение, както и с високоефективна отоплителна система с термопомпа въздух/вода Viessmann, комбинирана с конвектори и подово отопление Rehau във всяко помещение. Вентилацията е реализирана със система за подаване на чист въздух на ниво партер и първи етаж.
Баните са напълно завършени с вградени моноблок системи Grohe, а подовите настилки на първия етаж са изпълнени с висококачествен италиански гранитогрес. Стълбището и коридорите са оформени с гранит с кожена текстура и дискретно LED осветление, което придава допълнително усещане за лукс и стил.
За къщата има разработен интериорен проект с опция за поръчка и изготвяне на цялостно обзавеждане.
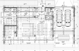
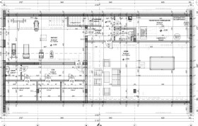
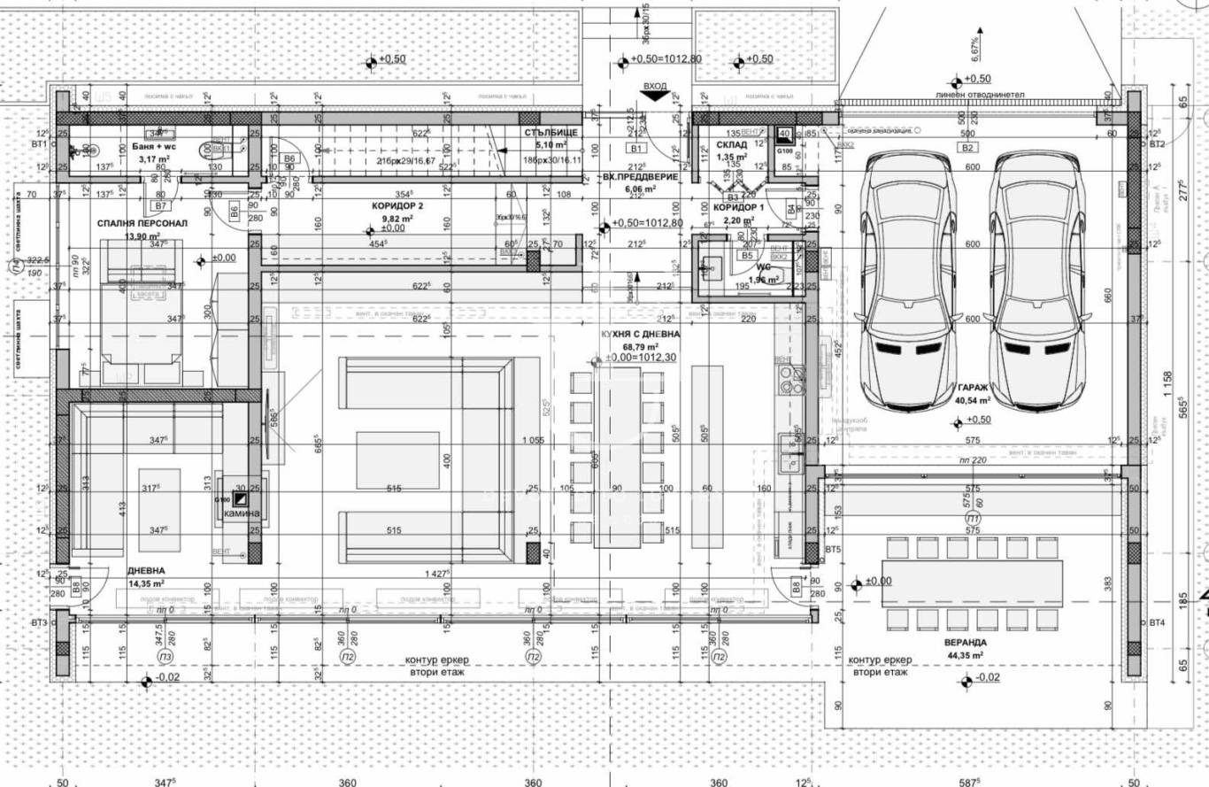
Първо ниво с излаз на двор: фитнес и спа зона, апартамент за гости, техническо помещение, баня с тоалетна
Второ ниво с излаз на двор: главен вход откъм улицата, обширен хол с кухня и трапезария, стая за отдих (пура стая с отделна вентилация), спалня със собствена баня, тоалетна за гости, уникална тераса - зимна градина, гараж с директен вход и топла връзка
Трето ниво: четири спални, от които родителска спалня (50 кв.м.) със собствена баня с тоалетна (10 кв.м.), дрешник и тераса, втора спалня със собствена баня, третата и четвъртата спалня, споделят обща баня, мокро помещение Цената е без включен ДДС. Ref. ID:28302







