Forton Homes представя модерна къща-близнак в луксозен затворен комплекс, разположен в м-т Детски град , само на 20 минути от центъра на София и близо до Бизнес Парк София и метростанция. Комплексът разполага с пълен контрол на достъпа, денонощна охрана, видеонаблюдение, поддръжка на общите части и обслужване на дворните пространства.
Къщата е с получен Акт 14, като въвеждане в експлоатация се очаква през есента на 2026 г. Проектирана е със съвременна архитектура, съчетаваща дърво и стъкло, висок клас материали и прецизно изпълнение. Изпълнена е с алуминиева дограма, френски прозорци с триплекс парапети, подово отопление с термопомпи MITSUBISHI, опция за охлаждане с конвектори, външни алуминиеви кутии за щори с автоматизация, както и композитен декинг Арттефино на терасите.
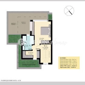
РАЗПРЕДЕЛЕНИЕ РЗП 340.4 кв.м (260.53 кв.м без сутерен):
Приземен етаж 79.87 кв.м
Хоби стая, английски двор, техническо помещение, мокро помещение, преддверие и стълбище.
Първи етаж 74.52 кв.м
Всекидневна, трапезария, кухня, открита тераса, антре, тоалетна, преддверие и стълбище.
Втори етаж 102.56 кв.м
Три спални, две бани, коридор, мокро помещение и стълбище.
Трети етаж 83.45 кв.м
Спалня, дрешник, баня, голяма тераса, стълбище.
Към имота са предвидени две паркоместа.
Комплексът предлага спокойствие, зелени гледки и висок стандарт на живот в една от най-предпочитаните зони на София.
Цената на имота е без ДДС.
Водещ консултант: Мира Зашева
+359 882 344 673
[email protected]







