Представяме за продажба двуетажна къща в нов, модерен комплекс за целогодишно обитаване, разположен на уникално място между три живописни плажа в кв. Крайморие , Бургас. В непосредствена близост до плажната ивица, сред чист въздух и уединение, същевременно само на 6 км от центъра на града.
Параметри на имота
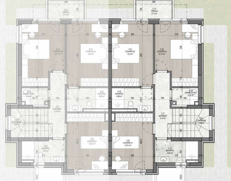
Къщата е от тип 'таунхаус' с РЗП - 158,55 кв.м, ситуирана върху двор с площ от 266.73 кв.м с две паркоместа.
Разпределение:
етаж 1: антре, дневна с кухня, санитарно помещение, веранда;
етаж 2: три спални, мокро помещение, две бани с тоалет, тераса.
Има възможност за преустройство на помещенията на първия етаж и обособяване на още една спалня.
Имотите се издават в степен на завършеност по БДС, на шпакловка и замазка.
Технически характеристики:
- Сградите се изпълнява с монолитна, стоманобетонна, безгредова конструкция;
- Стените се изпълняват с керамични тухли Wienerberger Porotherm 25 см. за фасадните и 12 см. за вътрешните преградни стени;
- Сградата е изцяло топлоизолирана с 12 см. EPS, 6 см. XPS за фундаменти, 15 см. XPS за покриви
- Фасадна минерална мазилка в цвят - бял/ графит Carbon Fassadenputz K / R, трудногорима, гаранция 15г.;
- Фасадна облицовка от синтерован камък с различни декори
- Парапетите по терасите са с пано от закалено стъкло;
-Висококачествена алуминиева дограма Schuco ASE 80.HI Hebe - Schiebe
- Хидроизолационна вана за фундамента на сградата;
- Високоустойчива полиуретанова хидроизолация за покрива, с UW защита;
- Релефен, мразоустойчив гранитогрес по терасите;
- Входна врата;
- Мазилките в сухите помещения се изпълняват от машинна варова мазилка-подготвени повърхности за боядисване, ъглите се оформят с поцинковани ръбохранители;
- Термоустойчива подова замазка;
- Полагане на настилка около къщата - тип паваж;
- Усилена настилка за паркоместата;
Отоплителна, вентилационна и климатична инсталация:
одготовка за термопомпена инсталация за цялата сграда, система въздух-вода;
инсталация на подовото отопление;
подготовка за вентилаторни конвектори за таванен и стенен монтаж, свързани с термопомпената инсталация;
подготовка за соларна инсталация за всяка една сграда, свързана с термопомпената инсталация;
подготовка за двусерпентинен бойлер, свързан с термопомпената и соларна инсталации;
смукателна вентилация към санитарни помещения;
смукателна вентилация към кухни;
ВиК инсталация:
сградна инсталация от системата многослойни тръби Radopress на Пайплайф;
заустване на отпадъчните води в уличната канализационна мрежа;
Електро инсталация:
главно електромерно табло (ГЕТ), разположено на границата на имота (УПИ);
сградно ел. табло, висок клас пластмасово, негоримо, с прозрачна отваряема вратичка;
инсталация от кабели СВТ. В апартаментите инсталацията е с проводници тип ПВВМ, положени скрито под мазилките;
монтирана вътрешна ел. инсталация HH, ключове и контакти;
мълниезащитна и заземителна инсталация;
слаботоково табло с място за рутер за безжично разпространение на интернет, декодер и силов контакт;
монтирана TV/LAN инсталация;
монтирани домофон, звънец и звънец бутон.
Височината на помещенията:
първи етаж: конструктивна - 3.40 м, светла - 3.10 м.
втория етаж: конструктивна - 3.00 м, светла - 2.70 м.
Предимства:
44 000 кв.м затворен комплекс с жива охрана и частен достъп;
контролиран достъп и 24/7 видеонаблюдение;
модерен фитнес център за активен и здравословен начин на живот;
ресторант и кафе за спокойни моменти и социални срещи;
професионална поддръжка на комплекса и общите части;
две паркоместа към всяка къща;
отстояние между къщите по централните алеи - 18 м;
зелени площи, детска площадка, зони за отдих;
три плажа в непосредствена близост;
бърз достъп до международно летище;
училище, детски градини, магазин, аптека, клиника с кабинети, рентген и операционни зали;
обслужваща инфраструктура - нов водопровод и канализация.

