ЗАПОЧНАЛ СТРОЕЖ! ЕРА Варна Тренд предлага за продажба двуетажна къща с двор и две паркоместа, в комплекс от 8 самостоятелни къщи, разположени в един общ парцел. Намира се в м-т Ракитника, на 300 м от главен път. Къщата е с РЗП 161 кв.м и следното разпределение:
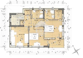
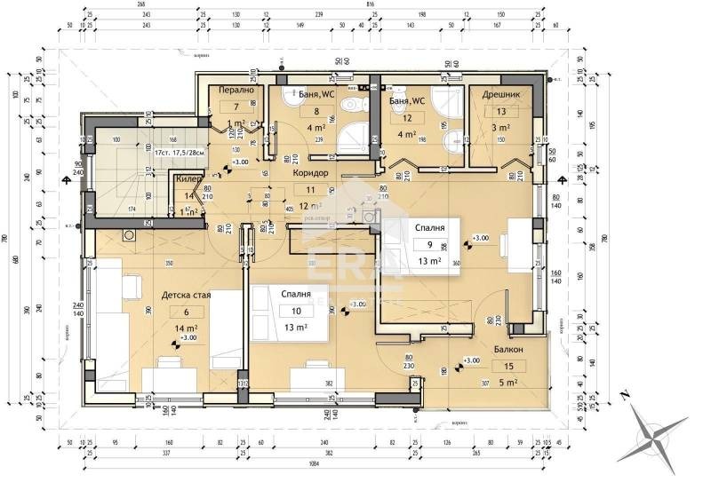
Първият етаж със застроена площ 80 кв.м се състои от входно антре (7 кв.м), просторна дневна с кухненски бокс и трапезария (37 кв.м), с излаз на широка веранда (7,6 кв.м), спалня/кабинет (10 кв.м), баня с тоалетна (3 кв.м) и килер (5 кв.м). Вътрешно стълбище води до втория етаж, който включва три спални (14 кв.м, 13 кв.м и 13 кв.м), едната със собствена баня с тоалетна (4 кв.м) и дрешник (3 кв.м), балкон (5 кв.м) към две от стаите, коридор (12 кв.м), втора баня с тоалетна (4 кв.м), перално помещение (1 кв.м) и килер (1 кв.м). Изложението е Юг/Изток/Запад. Ще се открива морска панорама от втория етаж.
Къщата се продава необзаведена. Ще бъде завършена до степен БДС, с поставена ПВЦ дограма. Налични са електричество, вода и пречиствателна станция в имота.
Двуетажната къща е тухлена. Използваемият двор към нея е с площ 250 кв.м, като в него са предвидени две открити паркоместа, включени в продажната цена. Комплексът от къщи е в начален етап на строителство, с издадено Разрешение за строеж, открита строителна площадка и извършена първа копка. Срокът за изпълнение на всички 8 къщи е 24 месеца (до края на 2027 г.), като всичко необходимо за въвеждане в експлоатация е осигурено, включително и нов трафопост, който ще бъде изграден и е част от инвестиционния проект. Комплексът ще бъде ограден. Достъпът до парцела е добър и лесен. Удобства: Автобусна спирка на 550 метра, Супермаркет на 800 метра.
Селищно образувание Ракитника се намира на около 4 км южно от варненския квартал Галата, в район Аспарухово на община Варна. До там има асфалтиран автомобилен път от Варна, който минава покрай квартал Галата. В близост се намира хижа Черноморец с обширен плаж. Има няколко магазина (за хранителни стоки, за строителни материали), охранителна фирма и параклис. Районът е водоснабден и електрифициран. Прокарана е кабелна телефонна мрежа. Има редовен градски транспорт - Автобус 60 (от ЖП гара Варна). Граничи с м-т Боровец Юг и м-т Фичоза. На юг има още една плажна зона - Паша дере.
Оферта 0222156







