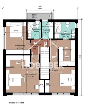
Продава се самосоятелна къща в гр. Варна, м-т Ален Мак. Ново строителство от 2023 г., с обща площ 191 кв.м и ясно структурирани помещения за функционален и удобен престой. Имотът предлага общо 5 стаи, от които 3 самостоятелни спални, 3 бани с тоалетни и 1 балкон. Разпределението осигурява отделни, функционални зони, подходящи за целогодишно пребиваване. Локацията комбинира спокойствие и бърз достъп до градската инфраструктура и морските зони. Подходящ избор както за собствен дом, така и за инвестиция с цел дългосрочно отдаване.
Основни параметри:
- Тип имот: Къща
- Локация: гр. Варна, м-т Ален Мак
- Година на построяване: 2023
- Обща площ: 191 кв.м
- Брой стаи: 5
- Брой спални: 3
- Брой бани с тоалетни: 3
- Брой балкони: 1
-Двор - 600 м2
- Цена: 449000.00
Квартал: М-т Ален Мак е спокоен район с преобладаващо ниско застрояване, бърз достъп до плаж Кабакум и близост до к.к. Св. св. Константин и Елена и основни пътни връзки към центъра на Варна.







