HOLDING GROUP real estate представя на Вашето внимание чудесна фамилна къща в м-ст Траката. Къщата е пред А 15 и се изгражда с висококачествени материали и внимание към всеки детайл. В парцел с площ от 626 кв.м. е ситуиран този чудесен фамилен дом с разгъната застроена площ от 207 кв.м. Разпределението е следното:
Първият етаж се състои от антре, просторен дневен тракт, техническо помещение, килер, баня с тоалетна и стълби към вторият етаж.
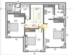
Втори етаж се състои от коридор, родителска спалня с дрешник и санитарен възел, още две спални, тераса, перално и баня с тоалетна.
От имота се открива красива морска панорама, а достъпът е по асфалтов път. Налични са партиди за ток и вода, канализация. Къщата се издава със степен на завършеност съгласно БДС. За повече информация и огледи, моля да се обадите на посоченият телефонен номер и цитирате кода на офертата.
Код на офертата 9134







