🏡 Предлагаме ви самостоятелна еднофамилна къща с модерна архитектура, разположена в Bistritsa Gardens селищен комплекс от отворен тип в с. Бистрица, предпочитан от хора, които ценят спокойствието, уредената среда и близостта до природата, без компромис с удобствата на града.
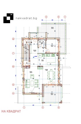
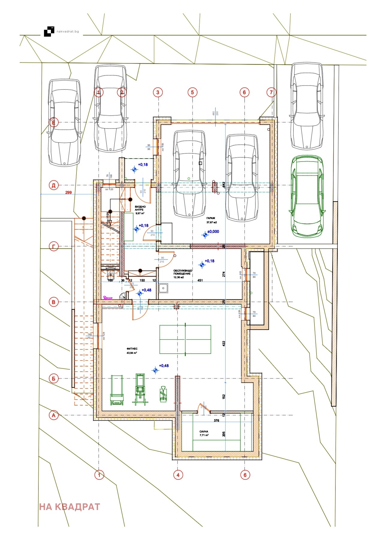
📐 Имотът е проектиран на четири нива, с функционално разпределение и просторни помещения. Естествената връзка между дневната зона, верандата и самостоятелния озеленен двор създава усещане за комфорт и свобода през всички сезони.
🧭 Разпределение:
🚗 Сутерен: Гараж за два автомобила, фитнес или многофункционално помещение, сауна, санитарен възел и склад.
🛋 Партер: Просторна южна дневна с кухня и трапезария, излаз към веранда и двор, входно антре и тоалетна за гости.
🛏 Първи етаж: Просторна мастър спалня със самостоятелна баня с тоалетна и дрешник, три отделни спални, втора баня с тоалетна, коридор и мокро помещение
💼 Подпокривно ниво: Отворено пространство с възможност за кабинет, студио или зона за отдих, със самостоятелен санитарен възел.
✨ Предимства на имота:
🏠 Самостоятелна къща в селищен комплекс от отворен тип без такса поддръжка
🌿 Озеленен двор с възможност за обособяване на зона за релакс
🚗 Гараж за два автомобила + външни паркоместа
🧱 Модерна архитектура и качествени фасадни материали
🔥 Подготовка за подово отопление (въздух вода) положени тръби, подложки и замазка, с изводи за бъдещо оборудване
🌄 Тиха и зелена среда с приятни панорамни гледки
🛣 Асфалтов достъп
📍 Локация и транспорт:
🚌 С. Бистрица предлага бърз и удобен достъп до София както с автомобил, така и с градски транспорт, с редовни автобусни линии до метростанция Бизнес парк и централните части на града. Районът е предпочитан заради комбинацията от спокойствие, чист въздух и добре развита пътна и социална инфраструктура.
💭 Ако идеята за съвременна къща близо до града, сред зеленина, тишина и спокойствие, отдавна е повече от мечта, сега е моментът да я превърнете в реалност.
📞 Направете първата крачка свържете се с нас за повече информация и оглед на тел: 0882 333 755
