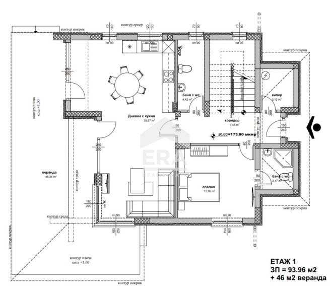
ЕРА Вива продава самостоятелна двуетажна къща в с. Приселци, област Варна. Вашият мечтан и зелен дом сред природа, тишина и простор има своето име и местоположение. Имотът е с РЗП от 230 кв.м., на два етажа и собствен двор с площ от 505 кв.м. Първият етаж се състои от коридор /7,45 кв.м./, кухненски бокс с трапезария и дневна /35,87 кв.м./, баня с тоалетна /4,42 кв.м./, мокро помещение/килер /3,12 кв.м./ и спалня /13,16 кв.м./ с прилежаща баня с тоалетна /3,17 кв.м./. На втория етаж са разположени две спални /14,18 кв.м. и 12,86 кв.м./, тераса /6,73 кв.м./, трета спалня с дрешник /15,03 кв.м./ и коридор /5,95 кв.м./. Отоплението е предвидено да бъде на ток, като са оставени изводи за подово.
Къщата е изградена с висококачествени материали и внимателно подбрани детайли, които осигуряват дълготрайност, комфорт и енергийна ефективност. Конструкцията е масивна, с първокласна топло- и хидроизолация, дограма от висок клас и отлично изпълнени фасадни и интериорни решения. Всеки елемент от покривната система до подовите настилки и инсталациите е съобразен с модерните стандарти за надеждност и уют, което превръща дома в сигурна, спокойна и устойчива семейна среда.
Имотът се намира на 15 км от центъра на град Варна /10 мин с кола/, на 6 км от к.к. Камчия и неговите невероятни плажове. Село Приселци разполага с отлична пътна връзка до град Варна, начално и средно училище, детска градина, православен храм 'Св. Дух', супермаркети, месарски магазин, сладкарница, ресторант, аптека, медицински център, пощенски клон, читалище с групи по интереси /фолклор, танци, йога и др./, условия за туризъм и спорт.
Ако искате да останете далеч от градския шум и замърсен въздух, да спортувате или да се разхождате сред гората, да ви събуждат птичките, изберете подходящата къща и я превърнете в свой дом.
Оферта 1009731







