БИЛДИНГ БОКС предлага за продажба просторна къща в с. Гурмазово, община Божурище.
Тишината и гледките допринасят за една истинска идилия за живот на село, отдалечено само на 10 мин от гр. София.
Мястото
Къщата е разположена в тихата част на с. Гурмазово, под хълм, който служи като естествена защита от северни и северозападни ветрове, с югозападно изложение и прекрасна гледка към 'Витоша' и 'Люлин' планина.
Простор
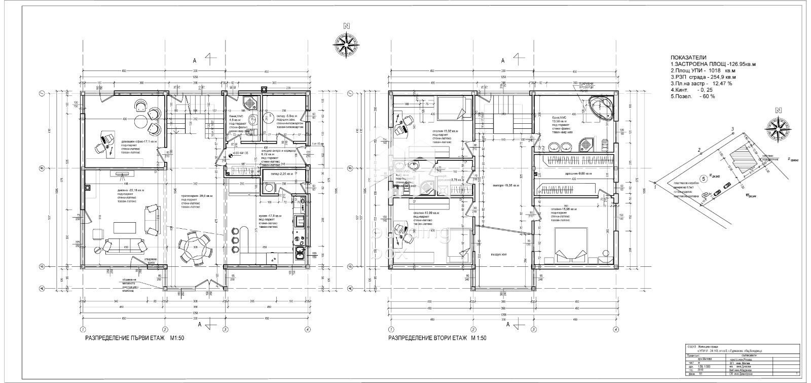
Къщата е двуетажна с РЗП - 255м2 с двор от 850м2, където има място за гаражи/паркоместа, басейн и барбекю.
В двора има изграден сондаж, като по този начин са решени питейните и поливни нужди. В съседните имоти се живее целогодишно.
Къщата е със следното разпределение:
1. На първия етаж - Просторна всекидневна, трапезария и кухня, кабинет, склад и баня с тоалетна;
2. На втория етаж - 3 големи спални, един дрешник, баня с тоалетна и огромна баня с тоалетна.
Технология и материали
Къщата е изградена по най-съвременни практики със смесена конструкция, бетонов фундамент с корава стоманена конструкция. Така се постига по-бърз монтаж и намаляване тежестта на къщата. Стоманата притежава добра издръжливост на усукване и обтягане, което я прави по-добрият избор по отношение на сеизмични влияния. Външните стени са 20см., с 10 см. топлоизолация, покрива е скатен с 15см. топлоизолация.
Проектът на къщата е заимстван от немски проектантски екип и разпределението е много функционално в типичен немски стил видно от схемите на снимките.
План и довършителни дейности
Къщата е построена през 2022г., като към момента е подготвена цялата документация за получаване на Акт 14 до края на 2025.
Акт 15+16 се очаква до м.февруари 2026г.
Имотът се предлага за продажба, като на този етап могат да се правят промени за постигане на необходимият комфорт и функционалност.
Този имот е за хора, ориентирани към спокойствието, след работния ден, ценящи хубавите гледки, простора и радостта от допира с природата.
Цената е съобразена с оставащите довършителни работи по къщата и двора. При сериозен интерес за придобиване на имота ще бъдат разкрити останалите предимства на място по време на огледа както и може да се даде оферта за довършителните дейности.
БИЛДИНГ БОКС предоставя безплатна консултация и съдействие при финансиране на избрания от Вас имот.
Оферта 25943







