ЕКСКЛУЗИВНО! Парцел 905 м2 с УПИ + готова обзаведена къща с акт.16 ново строителство (2018) с РЗП 54,75 м2 + продажба на зелено на луксозна пасивна къща с РЗП 200 м2 с актуална виза за строеж директно от строителя (до Акт 16)
Локация: с. Пауново, общ. Ихтиман (25 мин. с кола до спирка на метро Интер Експо Център - Цариградско шосе в София, 10 мин. от Вакарел, 15 мин. от АМ Тракия )
Строителна фирма МОДУЛИ Ви предлага:
1. Парцел 905 м2 УПИ, равен, слънчев, на най-хубавото място във вилната зона, ток, вода (допълнително кладенец), асфалтов достъп
Цена: 55 380 евро (61 евро/м2)
2. Готова обзаведена къща ново строителство (2018) РЗП 54,75 м2
Цена: 69 335 евро (1262 евро/м2)
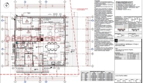
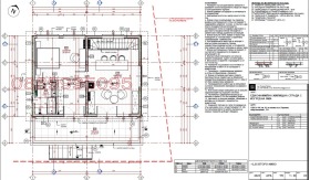
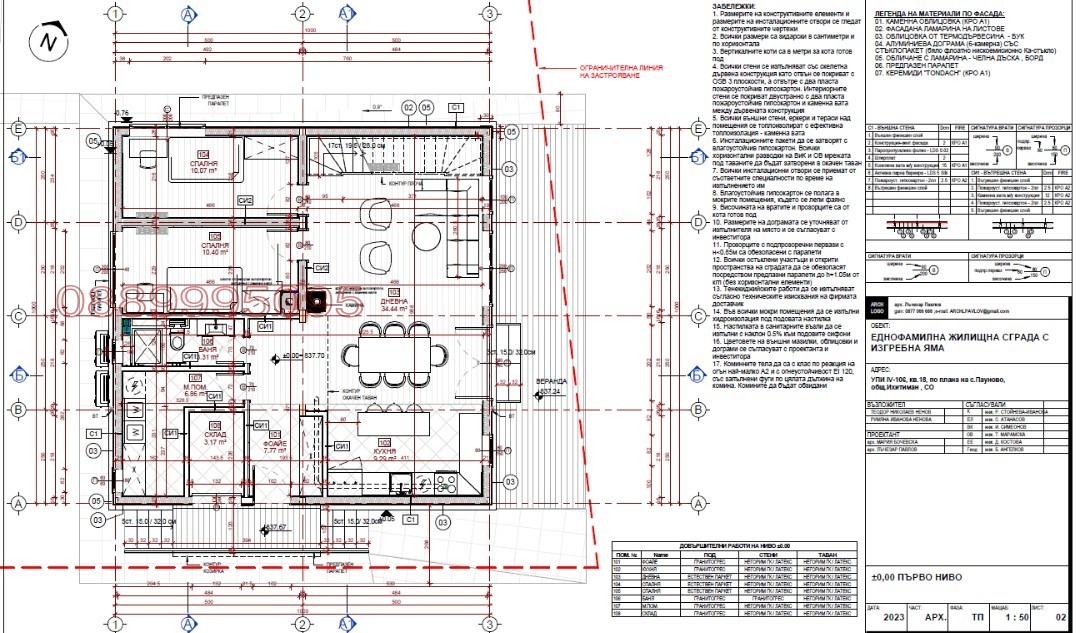
3. Луксозна пасивна къща на зелено, директно от строителя РЗП 200 м2, с актуално разрешение за строеж, строителство до Акт 16, с вкл. вертикална планировка плюс 3 паркоместа.
Цена: 296 800 евро (1 530 евро/м2 с ДДС)
*** ПАКЕТНА ЦЕНА ЗА ВСИЧКО : 421 515 евро ***
Индивидуални условия на плащане, по договаряне.
Предимства:
+ Веднага ползваема обзаведена къща в парцела
+ Всички комуникации
+ Пасивна къща с минимални разходи за енергия с опции според желанието на клиента
+ под 30 минути от София-град, чист въздух и спокойствие
+ Идеална инвестиция за семеен дом в близост до града
Документи: пълни, чисти, готови за нотариална сделка.
Очакваме Ви за оглед!







