ОФЕРТА:25355 Предлагаме Ви жилищен комплекс в село Маноле. Включващ 10 еднофамилни къщи от градски тип със самостоятелен двор и две паркоместа на мин от центъра на гр.Пловдив.
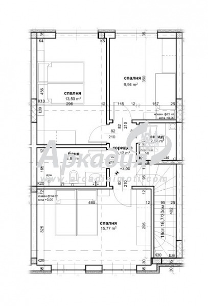
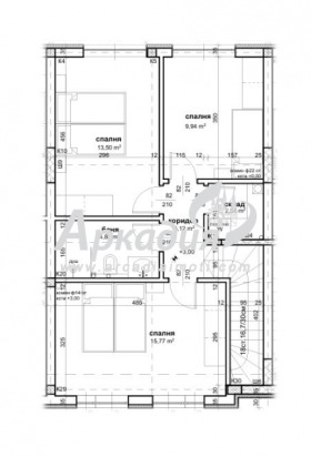
Всяка къща разполага с просторна всекидневна, ТРИ спални, два санитарни възела, перално помещение, собствен двор и две паркоместа.
Имота е с площ от 126кв.м. и площ на двора 64кв.м.
Село Маноле се намира само на 12км. Североизточно изложение от Пловдив. Комплекса е ситуиран на асфалтов път. Маноле е едно от най-населените и бързоразвиващите се села в близост о града.
Транспорт до Пловдив - Напълно реновирана ЖП Гара с редовен железопътен транспорт, Маршрутна линия 8, редовна автобусна линия.
Детска градина 'Мечта', Средно училище 'Васил Левски', Здравна служба, Футболно игрище, Читалище и много други.
Предимства на къщата:
- Не плащате за ОБЩИ ЧАСТИ
- Светъл, функционален и просторен дом
- Живот сред зеленина и чист въздух
- Бърз достъп до града
ЗА ПОВЕЧЕ ИНФОРМАЦИЯ И ОГЛЕДИ ТЕЛ.ЗА КОНТАКТИ 0879056454. ВИЖТЕ ВСИЧКИ НАШИ ОФЕРТИ - WWW.ARCADIAIMOTI.COM







