Недвижими Имоти Шабла
ПРОДАВА:
✅ КОМПАКТНА И УЮТНА КЪЩА В БЛИЗОСТ ДО ГР.КАВАРНА
📍 с. Хаджи Димитър
📏 60 кв.м жилищна площ
🌿 1162 кв.м двор
💰 75 000 евро
📌 Описание на имота:
Предлагаме поддържан и уютен дом, разположен в спокойно село само на 10 минути от Каварна. Къщата е едноетажна, отлично подредена и се продава напълно обзаведена.
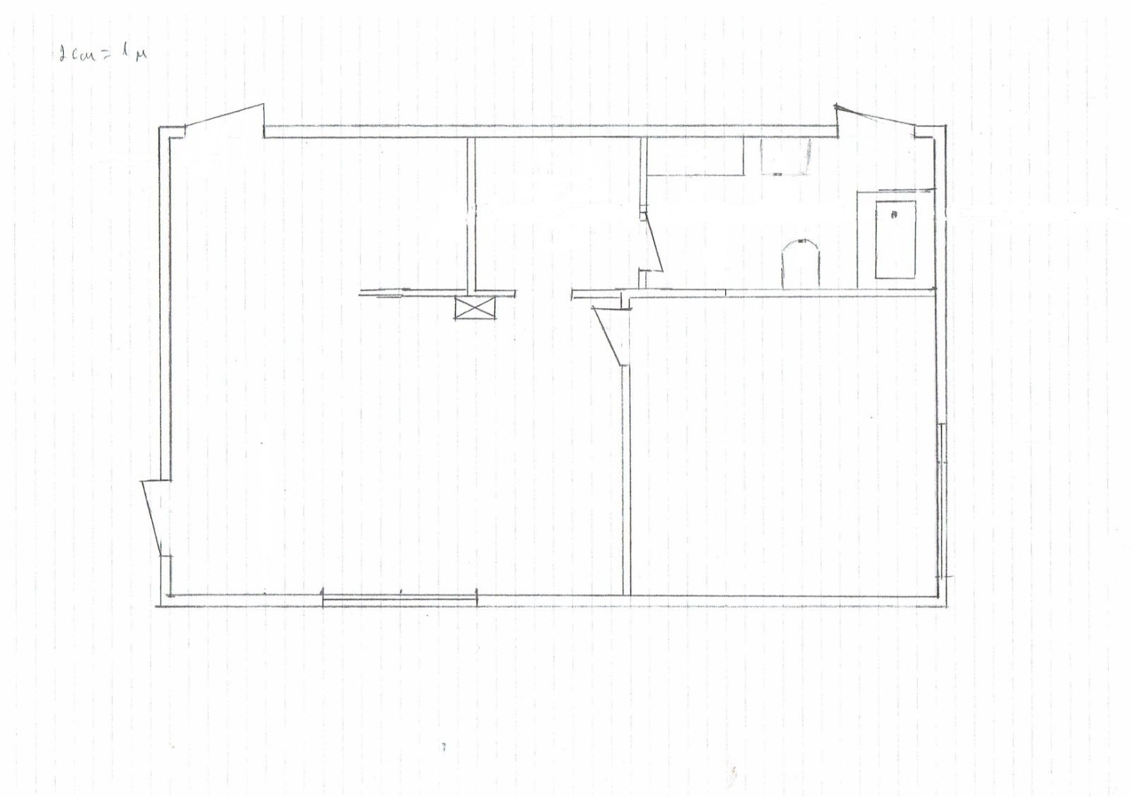
Разпределението включва:
✔️ светла дневна зона
✔️ отделна кухня
✔️ комфортна спалня
✔️ килер / складово помещение
✔️ баня с тоалетна с два входа от къщата и от двора
✔️ голяма веранда 50 кв.м, от които 20 кв.м са покрити
🏠 Състояние и удобства:
Дървена къща върху бетонна основа.
Отлична топлоизолация.
Година на строителство: 2017
Прозорци с троен стъклопакет.
Климатици, осигуряващи комфорт през всички сезони.
Предвиден комин възможност за лесно поставяне на печка.
Пълна достъпност за хора с увреждания.
Допълнителна помощна постройка + каравана, подходяща за гости.
Налични ток и вода.
1000 л резервоар с хидрофор за резервно водоснабдяване.
🌿 Дворното пространство:
Парцелът е равен и много добре поддържан. Засадени са различни плодни и екзотични дръвчета като киви, гуава и райска ябълка истинско зелено кътче с потенциал за развитие.
📌 Локация с. Хаджи Димитър:
Тихо и подредено село, разположено между Шабла и Каварна. В близост е и общинският център Каварна, предлагащ пълна инфраструктура: училища, детски градини, магазини, заведения, културни събития и удобства за постоянно живеене.
Районът е известен с красивите си плажове и приятния климат.
За допълнителна информация и огледи:
Донка Ангелова
📲 0886228599
📩 [email protected]
🌐 Imotishabla.com
❤️ СЕВЕРНОТО ЧЕРНОМОРИЕ ЕДНА ДОБРЕ ЗАПАЗЕНА ТАЙНА ❤️







