Представяме Ви новия ни ексклузивен проект, който се изгражда в с. Бистрица, на ул. Горски пейзаж, където природата разказва своята история за хармония, светлина и уют.
Тук, сред зеленина и гледка към Витоша, се ражда проект, вдъхновен от идеята за модерен живот в прегръдката на природата три самостоятелни еднофамилни къщи с двор: Terra, Sierra и Aera, вдъхновени от идеята за модерен живот в хармония с природата.
Къща AERA:
Представяме Ви еднофамилна къща AERA премиум имот в сърцето на Бистрица, съчетаващ модерна визия, качествено изпълнение и хармония с природата. Имотът се намира в тих и престижен район с прекрасни гледки, чист въздух и бърз достъп до София. Всяка къща е разположена на самостоятелен парцел, като този имот разполага с терен от 613 кв.м и обособен частен двор от 367,8 кв.м.
Къща AERA е изпълнена с монолитна конструкция, висок клас материали и детайлно прецизирани системи. Фасадата е решена с декоративна минерална мазилка BAUMIT и елементи от дървена обшивка. Дограмата е алуминиева с трислоен стъклопакет, осигуряващ отлична енергийна ефективност и шумоизолация. Отоплението е с термопомпа и подово отопление. Всяка къща разполага със собствено пречиствателно съоръжение.
Разпределение:
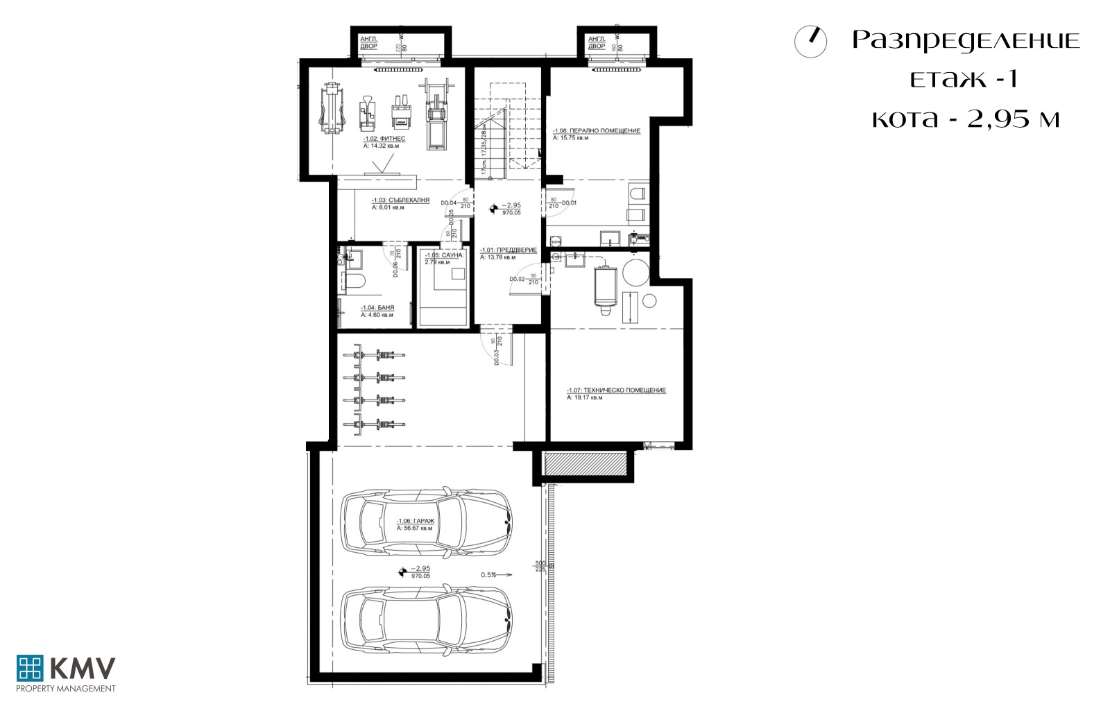
етаж -1/ сутерен
ЗП сутерен 160 кв.м
Сутеренният етаж предлага богат набор от функционални и удобни пространства:
Гараж за два автомобила 56,67 кв.м
Сауна и фитнес зона 27,72 кв.м
Перално помещение 15,75 кв.м
Техническо помещение 19 кв.м
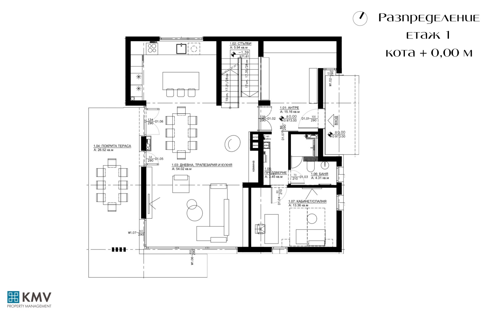
етаж 1/ партер
ЗП партер 113,20 кв.м
Антре 15 кв.м
Просторна дневна с кухня 54 кв.м
Кабинет-13,36 кв.м
Баня- 4,31 кв.м
Покрита тераса 26,52 кв.м с излаз към двора
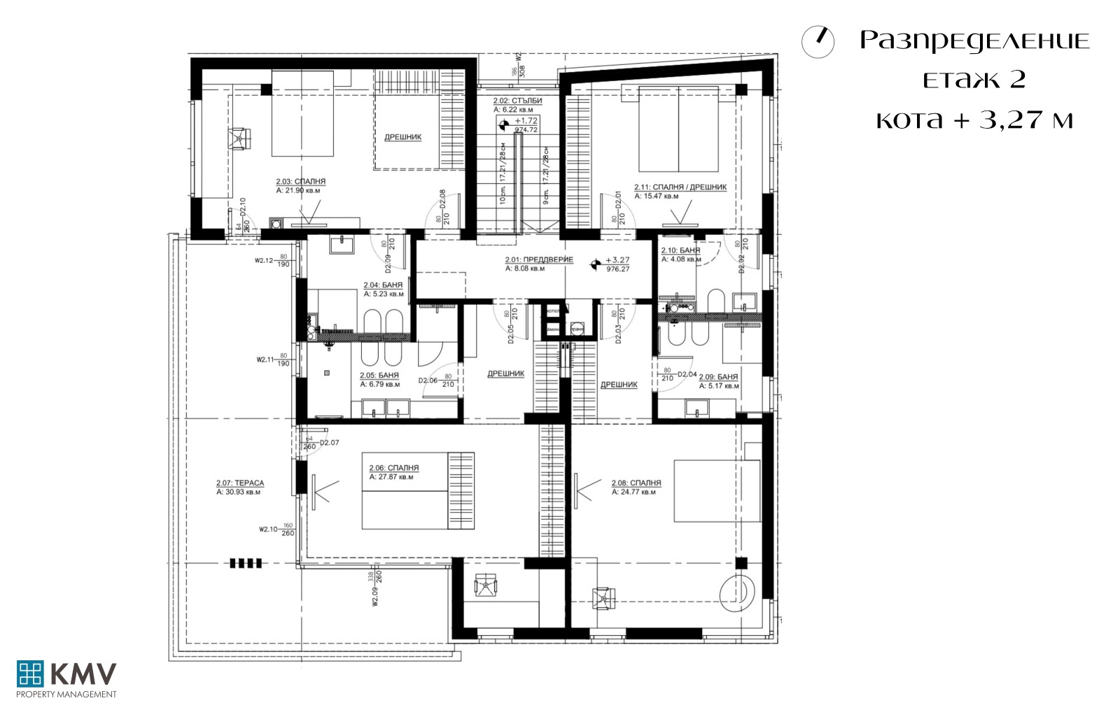
етаж 2
ЗП етаж 185 кв.м
Спалня 1 мастър суит, 27,87 кв.м със собствена баня (6,79 кв.м) и дрешник
Спалня 2 21,90 кв.м със собствена баня (5,23 кв.м) и дрешник
Спалня 3 24,77 кв.м със собствена баня (5,17 кв.м) и дрешник
Спалня 4 15,47 кв.м, подходяща за спалня, кабинет или голям дрешник
Две от спалните имат излаз към общ балкон с площ 30,93 кв.м, предлагащ панорамни гледки и естествено осветление.
Дворът към къщата е самостоятелен и озеленен според проект. Изградена е автоматична поливна система и пълна инфраструктура за градинско осветление. Оградата комбинира плътна основа и ажурни елементи до 220 см.
AERA е олицетворение на въздуха лекота, светлина и свобода.
Дом, който създава усещане за простор, движение и хармония.
Името носи усещане за чистота, свежест и елегантност, което се отразява и в архитектурния стил: просторни помещения, открити гледки, светли пространства и плавни линии.
AERA е за хора, които обичат светлината, въздуха и свободата и искат дом, който им дава точно това.
Предлагаме разсрочено плащане:
20% на подпсиване на Предварителен договор
20% при монтирана дограма
60% на етап АКТ 16
всички цени в проекта са без вкл.ДДС







