Агенция TRIVIUM ESTATE представя:
Двуетажни къщи на калкан с двойни гаражи в с. Марково, област Пловдив
С. Марково е едно от най-предпочитаните села край Пловдив, известно с чистия въздух, спокойствието и панорамните гледки към града и Родопите. Намира се само на 10 минути с кола от Пловдив, което го прави идеално място за живеене, съчетаващо уединение и удобен достъп до града.
Представяме Ви два просторни и функционални дома, които се продават на зелено. Строителството стартира в края на март началото на април 2025 г., със срок за завършване до 2 години.
Характеристики на имотите:
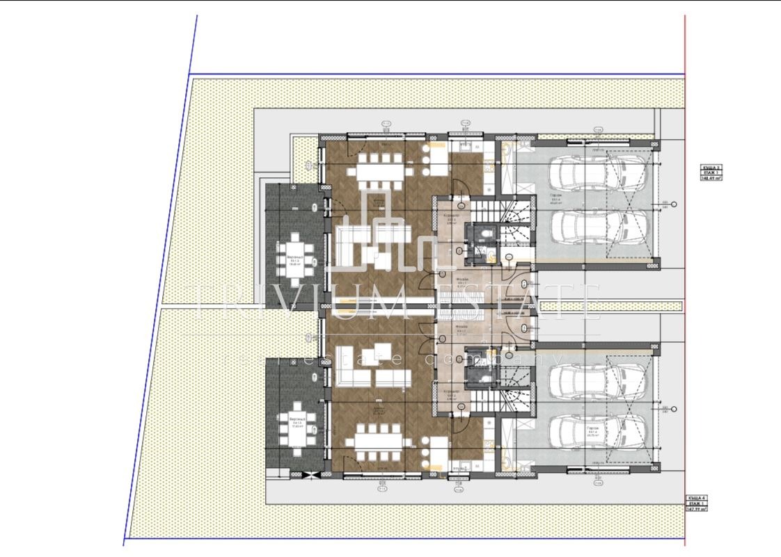
🏡 Къща 3 305,18 кв.м, двор 138,40 кв.м
🏡 Къща 4 303,68 кв.м, двор 155,97 кв.м
✅ Двоен гараж с топла връзка
✅ Първи етаж кухня, трапезария, хол, санитарен възел
✅ Втори етаж 3 спални, 2 бани, мокро помещение, 2 просторни тераси
✅ Основната спалня е с дрешник
🏡 Къщите предлагат удобство, простор и съвременен дизайн, съчетавайки комфорт и спокойствие с лесен достъп до града.
TRIVIUM ESTATE предлага безплатна консултация с нашия кредитен консултант и о съдействие при кредитиране.
За повече интересни оферти и информация, харесайте или се абонирайте за нашите канали:
FB: https://www.facebook.com/share/15sHFtrVWj/?mibextid=wwXIfr
Instagram: https://www.instagram.com/triviumplovdiv/
TikTok: https://www.tiktok.com/@triviumestate?_t=ZN-8soOStpMjeI&_r=1
YouTube: http://www.youtube.com/@triviumestate
Или посетете нашият сайт:
https://trivium.bg/
📞 За повече информация и оглед:
Отговорен консултант: Валери Петров
☎ Телефон: +359 896 633 638
Номер на оферта: 14813







