БИЛДИНГ БОКС има удоволствието да Ви представи ново предложение - дом заобиколен от природа, спокойствие и простор.
Проекта включва пет еднотипни, еднофамилни къщи, всяка с разгъната площ (РЗП) от 180.00 кв. м. и дворно място 500 кв.м.
Всяка къща е проектирана изключително функционално с правилна форма и впечатлява със своята съвременна визия и архитектура.
Състои се от две нива и две надземни парко места.
На първо ниво са разположени просторна всекидневна с изобилие от естествена светлина, голяма кухня с трапезария и хол, удобно складово помещение (килер), баня с тоалетна и входно антре.
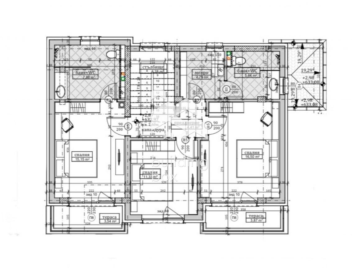
На второ ниво са разположени родителска спалня със самостоятелна баня и дрешник, други две спални, баня, мокро помещение и коридор.
Къщите са с външна изолация и висок клас алуминиева дограма и троен стъклопакет, входна врата.
Отоплението би могло да е проектирано да се осъществява чрез термопомпа или със система котел на пелети. Къщата ще бъде издадена с изградена тръбна и кабелна инсталация, а новият собственик ще може да избере и постави уредите.
Всяка къща ще разполага със собствена пречиствателна станция, водопроводна инсталация, електро- и слаботокова инсталации. Подовете ще са с положена замазка, а стените и таваните с мазилка.
Дворното пространство ще бъде озеленено по проект с градинско осветление и подходящи подходи и пътеки за движение. Имотът ще бъде ограден с ажурна ограда, която заедно с необходимите парапети ще отговарят на архитектурния стил и визия на целия проект.
Имота е на 20 км. от гр. София в живописното село Хераково
Билдинг Бокс предоставя безплатна консултация и кредитно съдействие при финансиране на избрания от Вас имот.
Оферта 25149



