ЕДНА УНИКАЛНА къща като разпределение и като локация .
Предлагаме 2 къщи близнаци , всяка със самостоятелен двор
Къща 1 - 305кв.м. , двор 260кв.м. - 390000е.
Къща 2 - 305кв.м. , двор 400кв.м. - 450000е.
Характеристики на имота :
-висок коефициент на топлоизолация на използваните фасадни материали
-най висок клас дограма
-монтирани тръби за подово отопление подходящи за котел или термопомпа
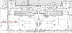
Разпределение :
-сутерен с технически помещения
-партер - обширна,светла дневна , баня , технически помешения
-първи етаж - 2 бр. големи спални , баня , гардеробна
СНИМКИТЕ НА ГОТОВА КЪЩА СА ИЛЮСТРАТИВНИ , на завършена вече такава.
-втори етаж - мастър спалня с баня и гардеробна
Акт 14 към момента , завършване 2026г.
При нужда от финансиране , ще ви насочим към най добрите финансови условия







