КЪЩА В ПОДНОЖИЕТО НА с. МАРКОВО - 1000евро кв.м. на АКТ 16 на 3 етажа
- Напълно изградена пътна инфраструктура
-Канализация, водоснабдяване, трафопост
-5 парка и детски площадки
-По две паркоместа за всяка къща
-Поддръжка на общите части
-Спирка на градския транспорт на метри от комплекса
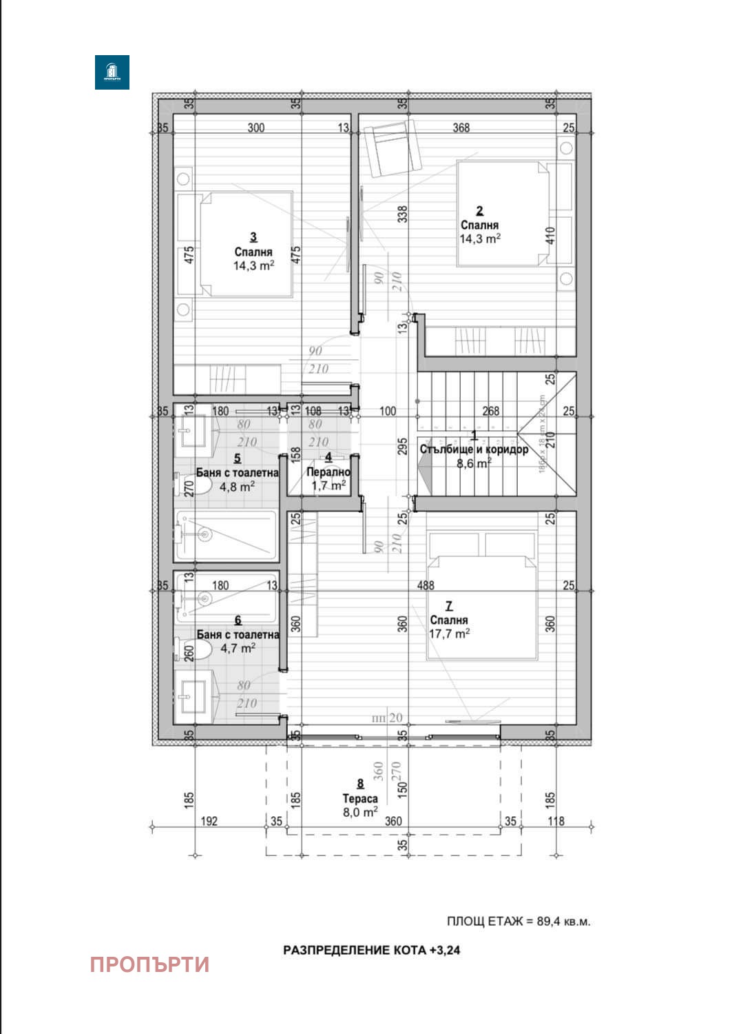
-Височина от таваните минимум 2,85 м.
-Възможност за изграждане на фотоволтаична система
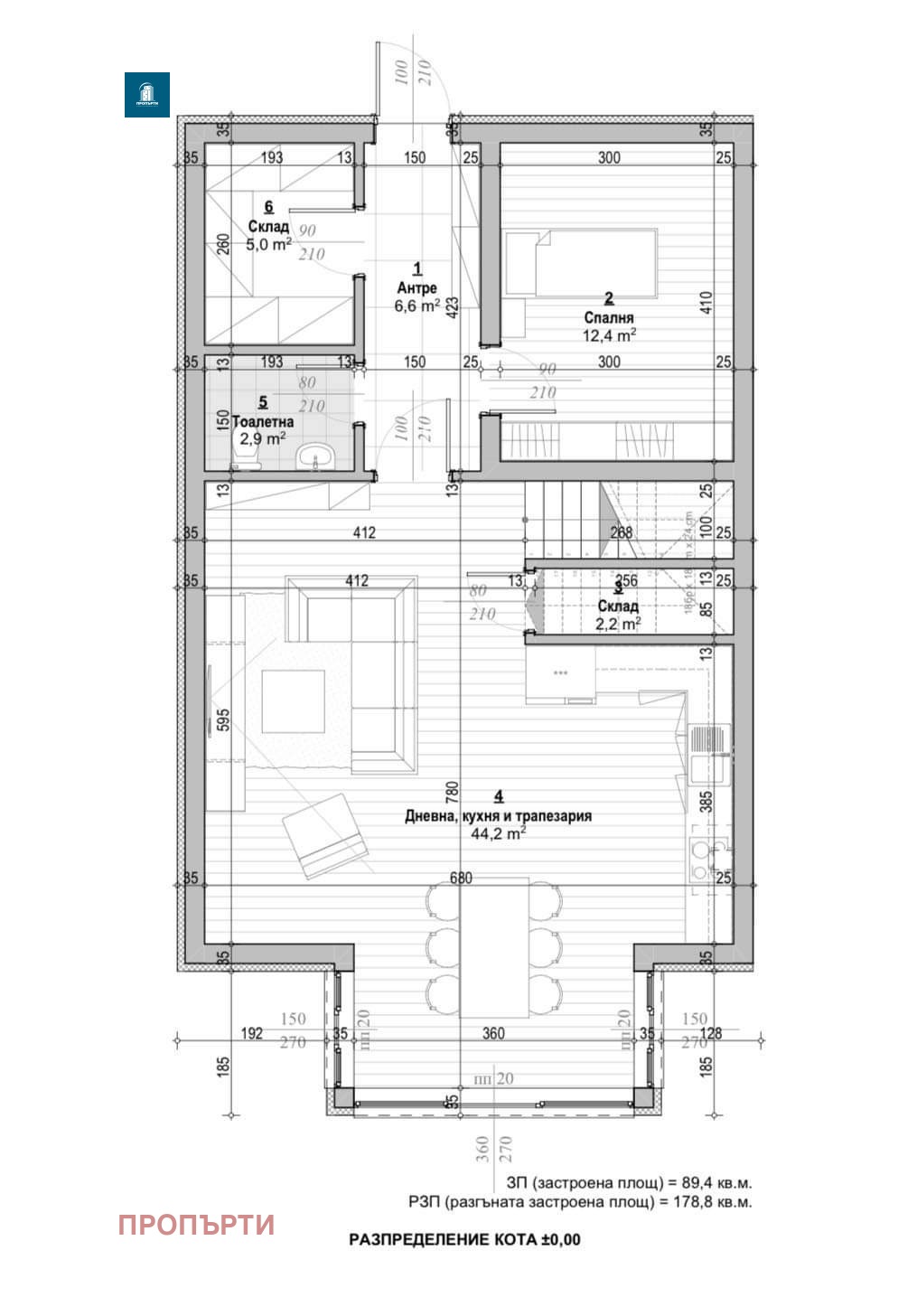
-двор - 167 кв.м.
-www.markovowest.com
Комплекс Markovo West е нов затворен жилищен комплекс с къщи от градски тип, разположен върху парцел с площ от 32 декара. Проектирахме комплекса така, че да представи 44 еднофамилни къщи, разпределени в три редици от по 4 и 6 броя в един модул, всяка от които разполагаща със собствен двор и две паркоместа. Еднофамилните жилищни сгради в Markovo West съчетават най-новите тенденции в архитектурата за енергийна ефективност, сигурност и комфорт. Възможност за поставяне на фотоволтаична система.
Сградите проектирахме така, че да разкриват красиви гледки към Родопите и усещане за пространство, домашен уют и близост до природата! За строителството на сградите използваме премиум материали от най-висок енергиен клас от водещите производители в бранша Тухли Wienerberger с високи якостни и топлоизолационни показатели, керемиди Tondach цвят антрацит. За да се потопите напълно в спокойствието и уюта на Вашия нов дом, ще озеленим и залесим общите площи на комплекса, както и ще оборудваме с детски площадки, алеи и пейки пет собствени парка с обща площ около 3000 кв.м.,
Не се колебайте да се свържете с нас на тел.: 0893915270,



