ЛУКСОЗНА ДВУЕТАЖНА КЪЩА С АКЦЕНТ ВЪРХУ ВСЕКИ ДЕТАЙЛ
ЛЕСЕН, АСФАЛТОВ ДОСТЪП
345 кв.м. РЗП
480 кв.м. ДВОР
СОБСТВЕН БАСЕЙН
ПОДЗЕМЕН ГАРАЖ ЗА ДВА АВТОМОБИЛА
МОРСКА ПАНОРАМА
БЕЗ КОМПРОМИС В СТРОИТЕЛСТВОТО
ВЪЗМОЖНОСТ ЗА ФИНАНСИРАНЕ ОТ БАНКОВА ИНСТИТУЦИЯ
ГЪВКАВИ СХЕМИ НА ПЛАЩАНЕ
Имоти Премиер предлага ЕКСЛУЗИВНО на вашето Внимание ЛУКСОЗНА ЕДНОФАМИЛНА КЪЩА в района на м-т Горна Трака, с лесен изцяло асфалтов достъп. Имота е с РЗП - 345 кв.м. и дворно място от 480 кв.м. в новостроящ се затворен комплекс от седем къщи. Този дом предлага простор, функционалност, луксозна визия и усещане за истински уют.
ФУНКЦИОНАЛНОТО разпределение е проектирано с внимание към всеки детайл, което гарантира максимално удобство и комфорт, съчетани в съвършен баланс.
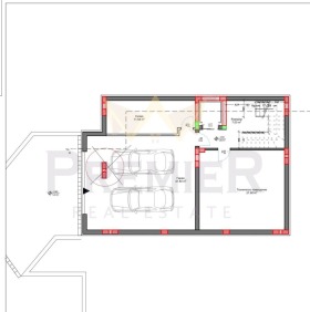
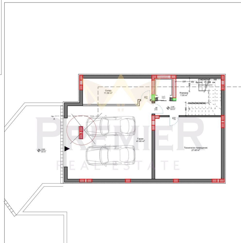
Полуприземен етаж със застроена площ от 107,65 кв.м.:
гараж- 46,60 кв.м.;
техническо помещение- 27,60 кв.м.
коридор и стълбищна клетка;
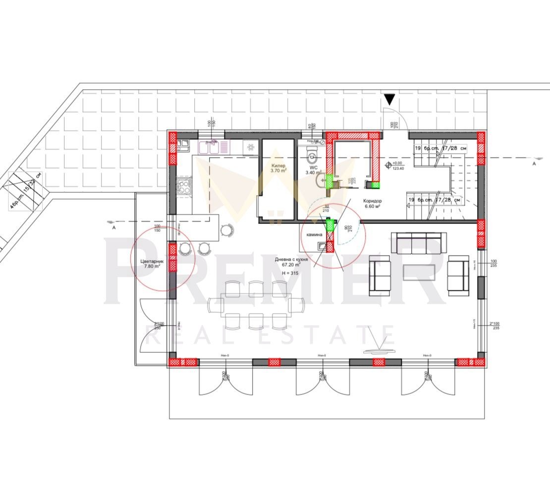
Първи етаж със застроена площ от 107,65 кв.м. се състои от:
просторен дневен тракт с кухненски кът- 67,20 кв.м.;
веранда, санитарен възел, килер, входно антре и стълбищна клетка;
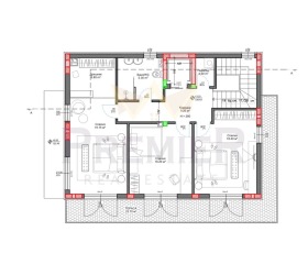
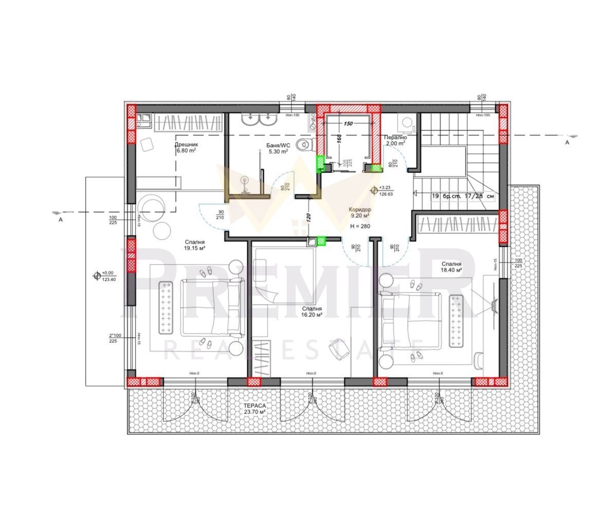
Втори етаж със застроена площ от 130,00 кв.м. и се състои от:
спалня 1 с дрешник и прилежаща тераса - 26 кв.м.;
спалня 2 с прилежаща тераса - 16,20 кв.м.;
спалня 3 с прилежаща тераса - 18,40 кв.м.
комбиниран санитарен възел, килер/перално помещение, коридор и стълбищна клетка;
Къщата ще бъде изградена с най- висок клас материали и без компромис в изпълнението, модерна визия с френски прозорци дограма шесткамерен Rehau Synego с троен стъклопакет Energy . Ще бъде положена заготовка и окабеляване на пода за полагане на термопомпа. Положена шумо и топлоизолационна система. Силикат-силиконова фасадна мазилка с висока паропропускливост и самопочистващ се ефект. Монтирана ще е топлоизолация и на всички открити участъци с оглед предотвратяване образуването на конденз и постигане на висока енергийна ефективност. Имотът ще бъде свързан с централен водопровод, но ще разполага и със собствен сондаж за басейна.
Проекта предлага възможност за закупуване на различни варианти луксозни къщи. Имотите ще се издават по БДС.
Местност Траката е едно от най-желаните места за живеене във Варна, с лесен достъп до центъра на града и същевременно предлагащ спокойствие и уединение. Местността е известна с красиви гледки към морето, зелени площи и висок стандарт на живот, което я прави изключително привлекателна за хората, търсещи едновременно комфорт, лукс и престиж.
Ние от екипа на Имоти Премиер ще Ви помогнем в търсенето на мечтаното от Вас жилище като се ангажираме да получите професионални съвети, както и изрядни документи след пълна проверка на имота. При желание на клиента съдействаме за отпускане на банков кредит при най-изгодни условия. Разчитайте на нашата подкрепа до самото финализиране на сделката! За повече информация и оглед, позвънете на посочените телефони. Код на обявата 367029







