Големи редови къщи с 4 спални в ТУИДА.
Представяме Ви къщи Наос и Талията в к-с Туида, кв.Галата.
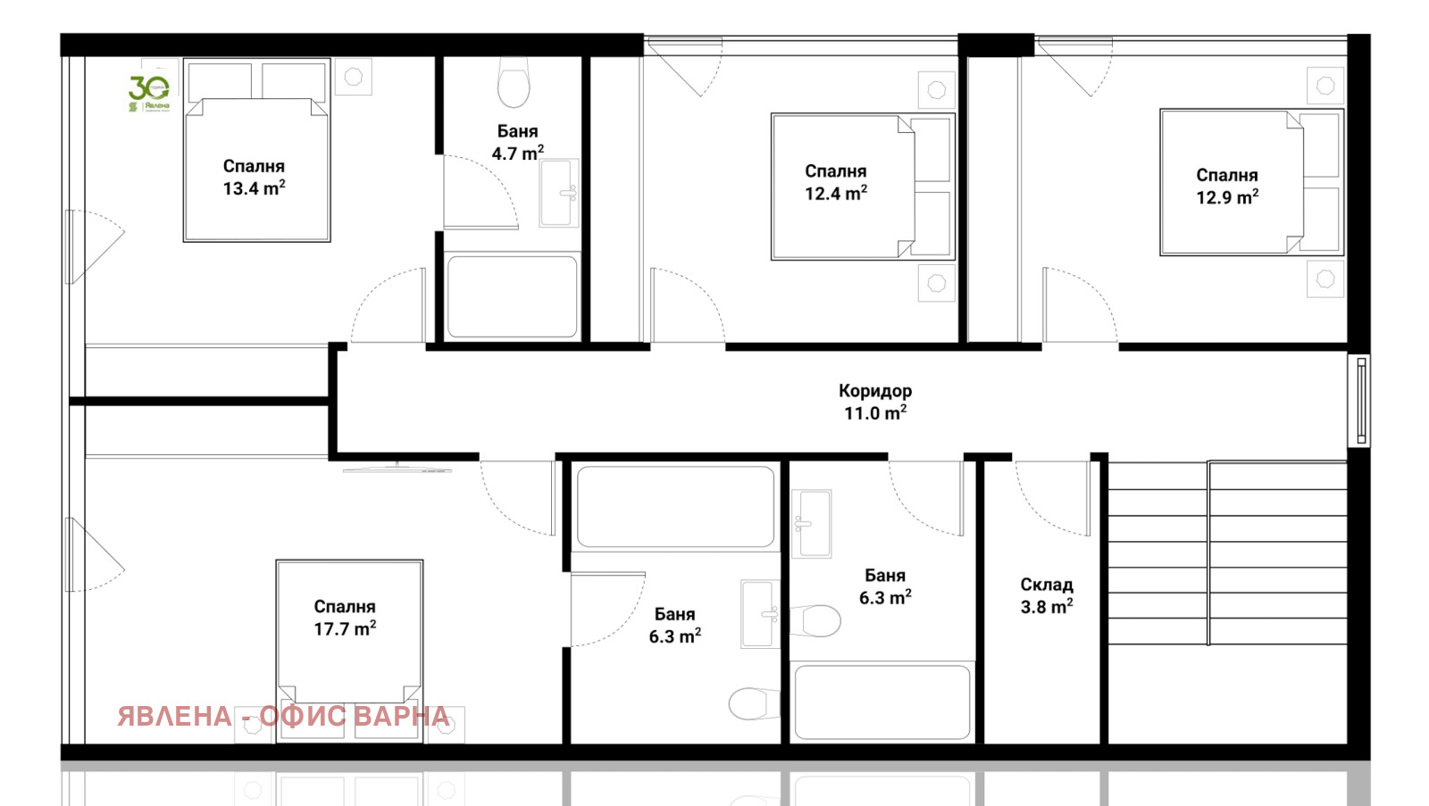
Всяка от къщите е с РЗП от 229 кв.м. и има със следното разпределение: на първо ниво са разположени двустранно осветен дневен тракт, с излаз на веранда, санитарен възел, помощно помещение и входно антре с обособено пространство за дрешник. На второто ниво са разположени четири спални, две от които със собствен санитарен възел, санитарен възел (трети на етажа) за другите две спални и склад/перално помещение. Дневният тракт е с площ от 56 кв.м., двустранно осветен с обособени кухненска, холова и трапезарна част и с излаз прекрасна веранда с площ от 22 кв.м.
Дворовете към този тип къщи са с площ от 455 до 476 кв.м., като във всеки двор са предвидени две паркоместа с точка за зарядна станция.
Строителството на Туида се отличава с изключителна прецизност и внимание към всеки детайл. Вложени са висококачествени материали от водещи европейски производители, сред които алуминиева дограма Schüco с троен стъклопакет и елегантна керамична фасада. Всеки елемент е подбран с мисъл за устойчивост, енергийна ефективност и дълготрайна естетика за да отговори на очакванията на хората, които търсят не просто дом, а среда със стойност във времето.
За комплекса: ТУИДА е бутиков комплекс, който впечатлява с внимателно подбрана локация и безкомпромисно строителство, изпълнено с внимание към всеки детайл. Разположен върху терен от 8895 кв.м., проектът включва 18 двуетажни къщи с разгъната застроена площ от 205 до 285 кв.м., като всяка е ситуирана в собствен двор създаден за уединение, спокойствие и живот сред зеленина.
Локацията: Комплексът е ситуиран в най-добрата част в кв. Галата.
с уредена транспортна инфраструктура и автобусна спирка до комплекса за лесен и бърз достъп до центъра на гр. Варна;
само на 500 м от плаж Галата;
граничи с природен парк Борисова градина , който е част от парк Галата ;
на пешеходно разстояние от хранителен магазин и всички необходими ежедневни удобства;
ТУИДА предлага рядко срещано съчетание: градски комфорт, уединение сред природата и морски въздух, събрани в едно хармонично пространство. Това е инвестиция в качество на живот дом, който отговаря на всички изисквания на съвременния човек.
Явлена е ексклузивен партньор в продажбите на ТУИДА. За повече информация можете да се свържете с нас на посочените телефони или посете сайта на https://tuida.life или https://www.yavlena.com/bg/157504







