AKT 16!! ПОДОВО ОТОПЛЕНИЕ!! ПЕРФЕКТНА ИНФРАСТРУКТУРА!! ГОЛЯМ ДВОР!! DELTA HILL!!
Предлагаме на Вашето внимание нови къщи в луксозния и реномиран комплекс Delta Hill комфорт, сигурност и природа в близост до София!
Всички имоти са с:
-подово отопление
-подготвена инсталация за термопомпи въздух-вода
-изградена канализация
-тухли Wienerberger, мазилка Baumit, керемиди Bramac.
-висок клас дограма Salamander
-перфектна инфраструктура
Комплексът предлага охрана, зелени площи, спортни и детски площадки, супермаркет и ресторанти.
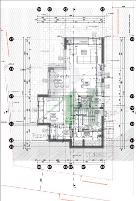
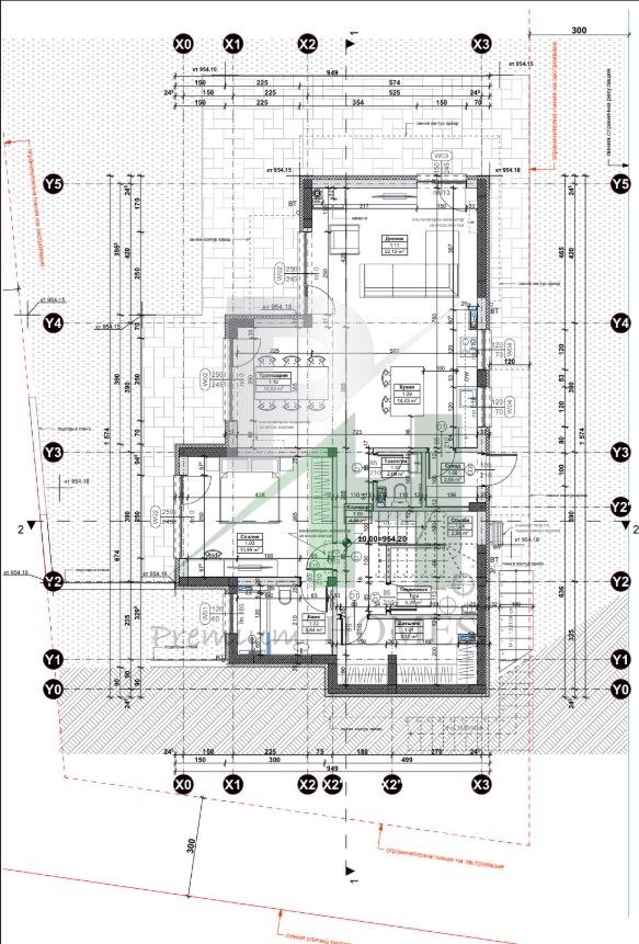
Технически параметри на конкретната къща:
Разгърната застроена площ: 263 кв.м
Парцел: 900 кв.м
Разпределение:
Първи етаж: дневна с трапезария и кухня, спалня, баня, тоалетна, дрешник, техн. пом., склад
Втори етаж: входно антре, 3бр спални, 2бр. бани с тоалетни, тоалетна, 2бр., балкон. дрешник, перално помщение
Двор: озеленен, с възможност за басейн и барбекю зона.
Прилагаме технически чертеж с разпределението на имота.
За да запишете час за оглед ни се обадете сега и цитирайте следния код: 709







