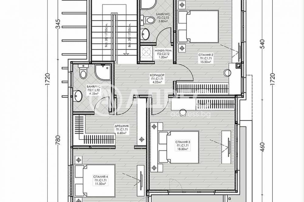
Бутиков затворен комплекс от 11 еднофамилни къщи, проектирани с внимание към детайла и максимален комфорт. Всяка къща е със застроена площ 192 кв.м и разполага с функционално разпределение, включващо просторна дневна зона с трапезария, отделна кухня/гостна, 4 спални и 3 бани. Предвидени са складово помещение и удобни зони за съхранение.
Къщите се предлагат на етап завършеност по БДС шпакловка, замазка, входна врата, монтирана дограма. Комплексът включва озеленени дворни пространства и огради, както и възможност за изграждане на подово отопление или отопление на газ.
Предлагат се и допълнителни услуги за интериорен дизайн, довършителни работи и цялостно обзавеждане, съобразени с желанията на клиента.
Комплексът се намира в гр. Банкя тиха и зелена зона в близост до София, известна с чист въздух, минерални извори и благоприятен климат. Локацията осигурява спокойна семейна среда, същевременно с бърз достъп до ключова инфраструктура, училища, детски градини и основни пътни артерии към столицата. Районът е предпочитан за постоянно живеене, съчетание на природа, спокойствие и удобства.
Затворен комплекс от ново поколение с контрол на достъпа
Съвременни еднофамилни къщи с оптимално разпределение 4 спални / 3 бани
Просторни дворове, озеленяване и огради, включени в цената
Централна канализация рядко предимство за района
Възможност за подово отопление и газификация
Висок стандарт на строителство и модерна архитектура
Опция за довършителни работи и интериорен дизайн
Тиха и зелена локация в Банкя, подходяща за семейства
Среда, осигуряваща спокойствие, уединение и високо качество на живот
Обади се сега и цитирай този код 673667



