БИЛДИНГ БОКС предлага за продажба ЕДНОЕТАЖНА къща в к-с 'HARMONY LIVING'.
ЛОКАЦИЯ: с. Бенковски на 16 км от гр. Варна, разположено в близост до града, съчетава предимствата на спокойствието на селската атмосфера, с удобството и достъпа до частна детска градина 'Еко мамината къща', супермаркет и автобусна спирка на 800м.
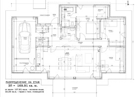
РАЗПРЕДЕЛЕНИЕ: Всекидневна с кухненски бокс - 42.56кв.м., веранда- 20 кв.м., родителска спалня - 16.32 кв.м със собствена баня 6.38кв.м и дрешник -2.9 кв.м, втора спалня - 12.90кв.м, трета спалня - 12.90кв.м, общо санитарно помещение- 3.55кв.м, перално помещение- 2 кв.м, гараж - 19,8 кв.м., техническо помещение- 5.94 кв.м и външно паркомясто.
ЗА ПРОЕКТА: Първият етап от проекта включва 23 самостоятелни къщи, разположени в хармония с околната среда. Комплексът предлага детска площадка, паркоместа за гости и портал с автоматичен контрол на достъпа, осигуряващи комфорт и сигурност за всички жители.
Къщите в този проект са проектирани с внимание към устойчивостта и удобството, като предлагат решения, които улесняват живота и намаляват разходите. Високият енергиен клас А осигурява по-ниски сметки за електроенергия и комфортна вътрешна среда през всички сезони. Възможността за инсталиране на соларни панели и система за съхранение на енергия е ключово предимство за тези, които искат да намалят своя въглероден отпечатък и да се възползват от чиста, възобновяема енергия. Това не само е екологично решение, но и предлага по-голяма независимост от растящите цени на енергията.
Всеки дом включва собствен двор с възможност за озеленяване, което ви позволява да създадете свое лично зелено пространство място за почивка, игри с децата или градина за свежи подправки и цветя.
ТЕХНОЛОГИИ И УДОБСТВА: Възможност за завършване до ключ; Подготовка за смарт дом система;Самостоятелна пречиствателна станция; Автоматична поливна система; Контрол на достъпа и улично осветление;
БИЛДИНГ БОКС предоставя безплатна консултация и съдействие при финансиране на избрания от Вас имот.
Оферта 26612
Виж всички обяви в buildingbox.bazar.bg или тук
        
       
         
         
         
         
         
         
         
         
         
         
         
             
             
             
             
             
             
             
             
             
             
            


