Next Step недвижими имоти предлага луксозна новопостроена къща в кв. Христо Смирненски, гр. Пловдив
Имотът впечатлява с модерна архитектура, функционално разпределение и висок клас на изпълнение.
РЗП: 240 кв.м
Етажност: 3 етажа
Статус: Акт 14
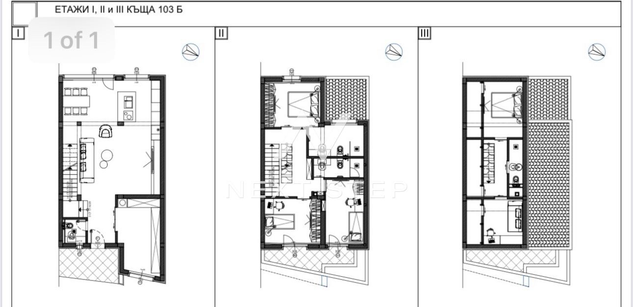
Разпределение:
Първо ниво:
Просторно преддверие с обособено гардеробно помещение за съхранение на връхни дрехи и обувки
Перално помещение и склад за почистващи пособия
Дневна стая с кухненски бокс, трапезария мека мебел
Тоалетна за гости
Второ ниво:
Основна спалня с баня
Две детски стаи, обслужвани от самостоятелна баня
Трето ниво:
Спалня
Кабинет / офис зона
Баня
Техническо помещение / килер в подпокривното пространство
Дворно място:
Имотът разполага с 50 кв.м. вътрешен двор, подходящ за зона за отдих, барбекю и зеленина
За повече информация, моля обадете се на посочения в обявата телефон и цитирайте код 965
Виж всички обяви в nextstepplovdiv.bazar.bg или тук
        
       
         
         
         
         
         
             
             
             
             
            


