LUXIMMO FINEST ESTATES: www.luximmo.bg
Представяме нова къща с Акт 14 в комплекс от осем самостоятелни къщи в кв. 'Сеславци', гр. София.
Проектът включва изграждането на модерни, уютни и енергийно ефективни самостоятелни къщи в кв. 'Сеславци', разположен в североизточната част на София. Този район е известен със своята красива природа, чист въздух и спокойна атмосфера, което го прави идеалното място за бягство от градската среда.
Разпределение на къщи 1 (двор 374 кв. м) и 2 (двор 394 кв. м):
Ниво сутерен 74,30 кв. м:
- Входно антре 8,45 кв. м;
- Двоен гараж - 34,77 кв. м;
- Складово помещение 1 5,38 кв. м;
- Складово помещение 2 3,57 кв. м;
- Стълбище 8,16 кв. м.
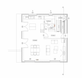
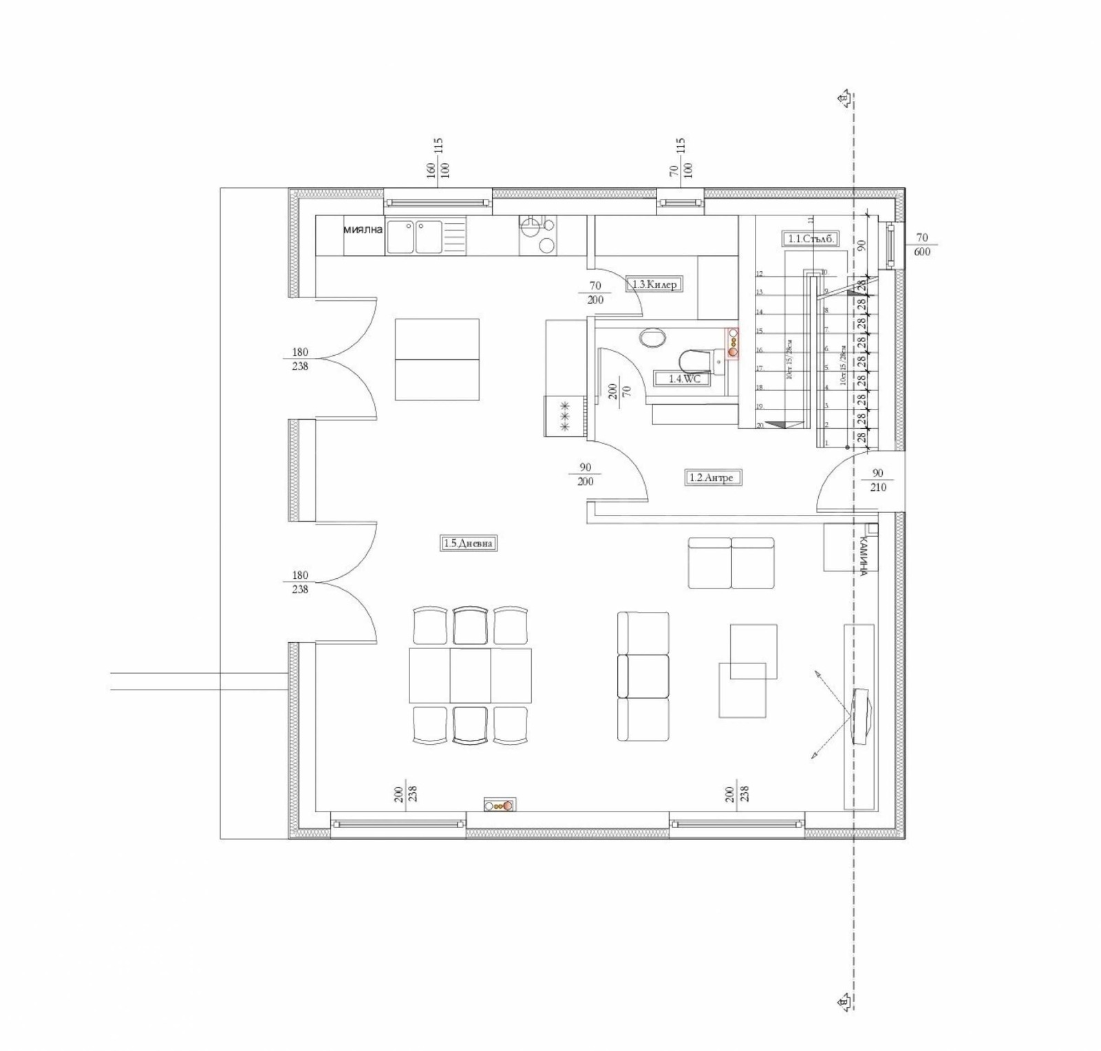
Ниво етаж 1 (кота 0) 87 кв. м:
- Дневна с кухненски бокс 52,73 кв. м;
- Килер 3,25 кв. м;
- Тоалетна 2,11 кв. м;
- Входно антре 5,84 кв. м;
- Стълбище 5,89 кв. м.
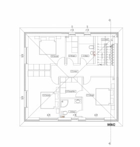
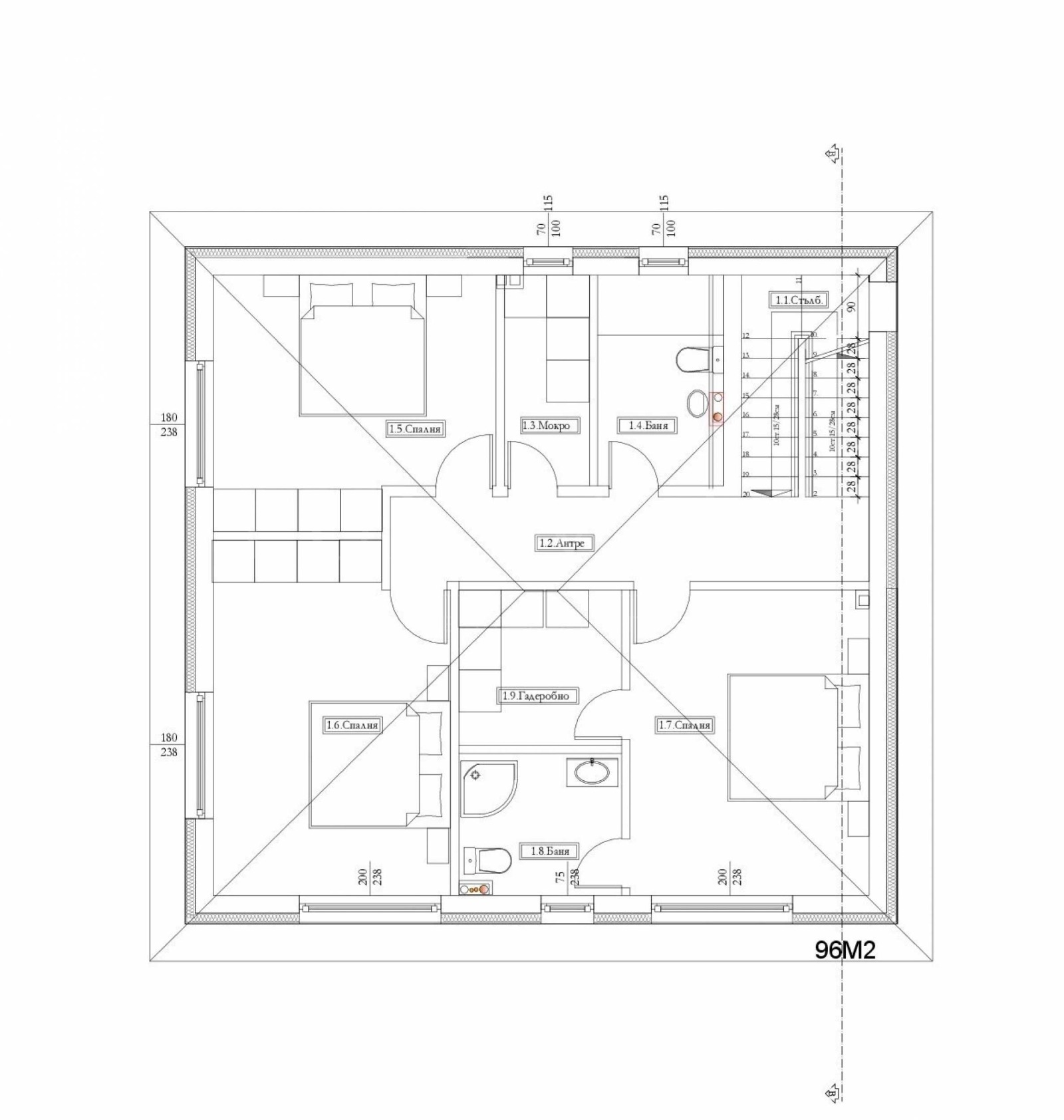
Ниво етаж 2 (кота 3,00):
- Спалня 1 13,55 кв. м;
- Спалня 2 16,32 кв. м;
- Родителска спалня (14,38 кв. м) с дрешник (4,96 кв. м) и баня с тоалетна (4,34 кв. м);
- Баня с тоалетна 3,57 кв. м;
- Мокро помещение 3,57 кв. м;
- Коридор 8,11 кв. м;
- Стълбище 5,89 кв. м.
Основни характеристики:
Тип имоти: самостоятелни къщи с три спални;
Брой къщи: 8;
Площ на парцелите: oт 340 до 570 кв.м;
Застроена площ на къщите: oт 180 до 258 кв.м.
Технически характеристики:
тухли Wiеnerberger Porotherm 25 см;
тухли вътрешни преградни стени Wiеnerberger Porotherm 12 см;
изолация по фасада 15 см;
фасадна мазилка Baumit;
два броя автоматични гаражни врати Hörmann;
входна врата от висок клас;
дограма: 5-камерна PVC, троен стъклопакет, 4К сезона външно висок клас;
мълниезащита;
изградени Електро и ВиК инсталации;
отопление на ток с подготовка за поставяне на термопомпа;
индивидуална пречиствателна станция и подготовка за присъединяване към канализация на централната ВиК мрежа;
керемиди и покривни материали ...
За повече информация свържете се с нас и цитирайте референтния номер на имота. Моля, кажете, че сте видeли обявата в този сайт.
Референтен номер: SOF-135272
Тел: 0882 817 564, 02 425 69 25
Отговорен брокер:Филип Николов
Без комисиона от купувача







