Представяме за продажба нова просторна къща, разположена в тих и спокоен район, застроен основно с еднофамилни къщи. Имотът е част от затворен комплекс от 18 къщи, който разполага с басейн и детска площадка.
Без такса поддръжка.
Сградата е с Акт 14.
Параметри на имота
Къщата с РЗП 341 кв.м разполага с двор с площ от 557 кв.м и има следното разпределение:
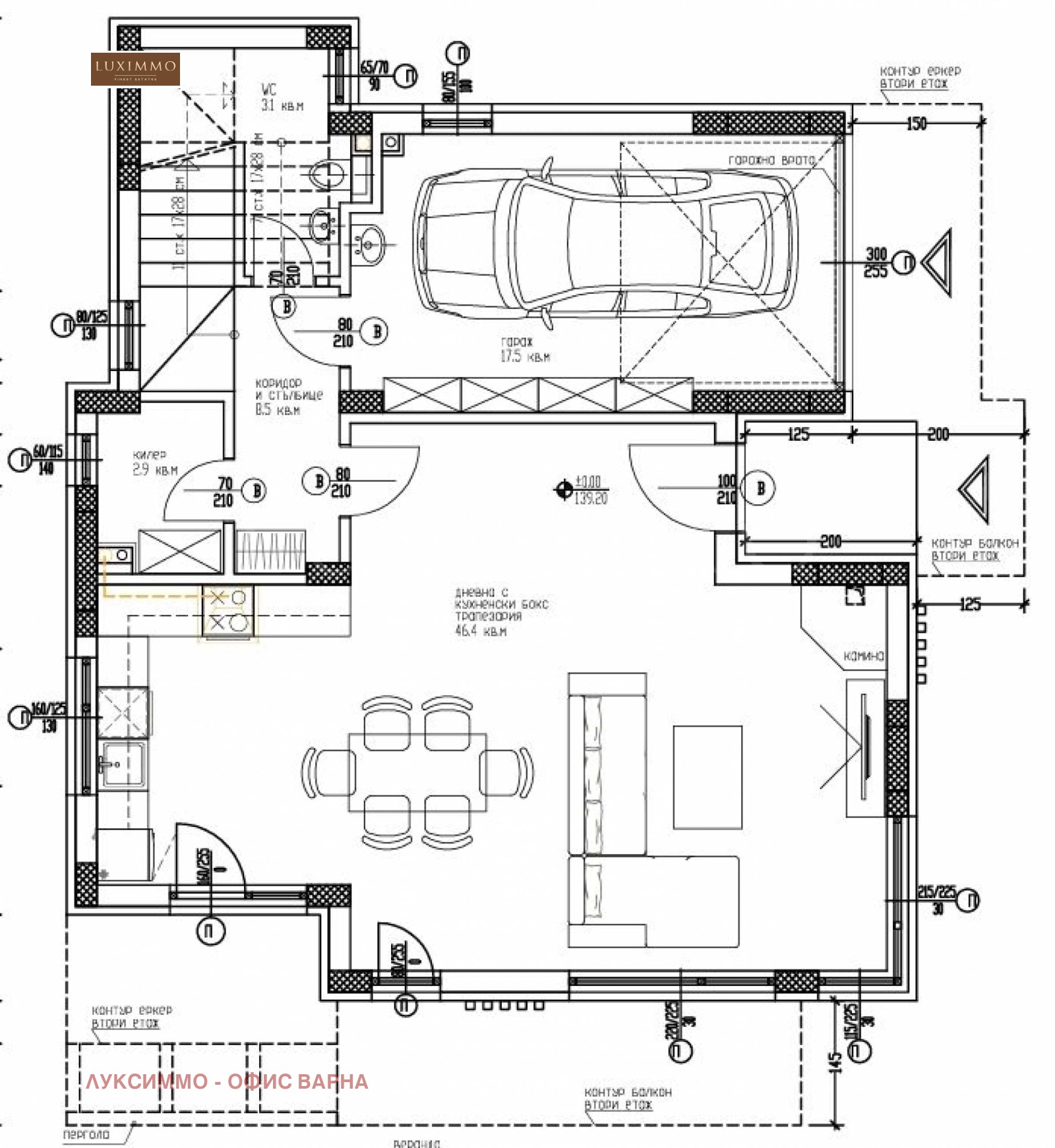
Етаж 1:
просторен дневен тракт 46.4 кв.м;
веранда с директен излаз към двора;
килер 2.9 кв.м;
тоалетна 3.10 кв.м;
гараж с топла връзка - 17.30 кв.м.
Етаж 2:
родителска спалня 13.2 кв.м с дрешник 6.3 кв.м и самостоятелна баня с тоалетна 4.7 кв.м;
две допълнителни спални 20.60 кв.м и 20 кв.м;
втора баня с тоалетна 7.1 кв.м;
две тераси с приятна гледка.
Етаж 3:
просторен дневен тракт 54.9 кв.м;
тоалетна - 2.6 кв.м. и килер - 3.5 кв.м;
голяма панорамна тераса.
Имотът се продава в степен на завършеност по БДС, с изводи за инсталации и готовност за довършителни работи по вкус на новите собственици.
Идеален дом е за тези, които търсят спокойствие, комфорт и качество на живот в съчетание с удобен достъп до града.
Има възможност за разсрочено плащане.
За повече информация и организиране на оглед, моля свържете се с отговорния брокер по офертата.
За повече информация свържете се с нас и цитирайте референтния номер на имота. Моля, кажете, че сте видeли обявата в този сайт.
Референтен номер: VAR-135320
Тел: 0988 154 553, 052 812 862
Отговорен брокер:Цветина Дачевска-Вукич
Виж всички обяви в luximmovarna.bazar.bg или тук







