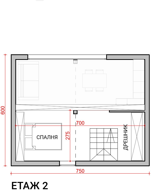
Предлагаме УПИ в село Ряхово с площ 445 кв.м. и лице към улицата 18м. В имота ще се изгради къща с дървена конструкция. Къщата е със застроена площ 45кв.м и РЗП 90кв.м. На ниво едно къщата има дневна с двойна височина, една спалня и баня, а на второ ниво - спалня с дрешник.
Къщата е подходяща както за постоянно живеене на малко семейство, така и за ползване като вила.
Сградата ще бъде издадена със завършена баня, настилки и стенни финиши. Изпълнено ЕЛ и ВиК до тапа.
Свържете се с нас за повече инфомация.



